Appartement nu à louer 849,00 € cc

Appartement Rue des Calanques 13310 Saint-Martin-de-Crau

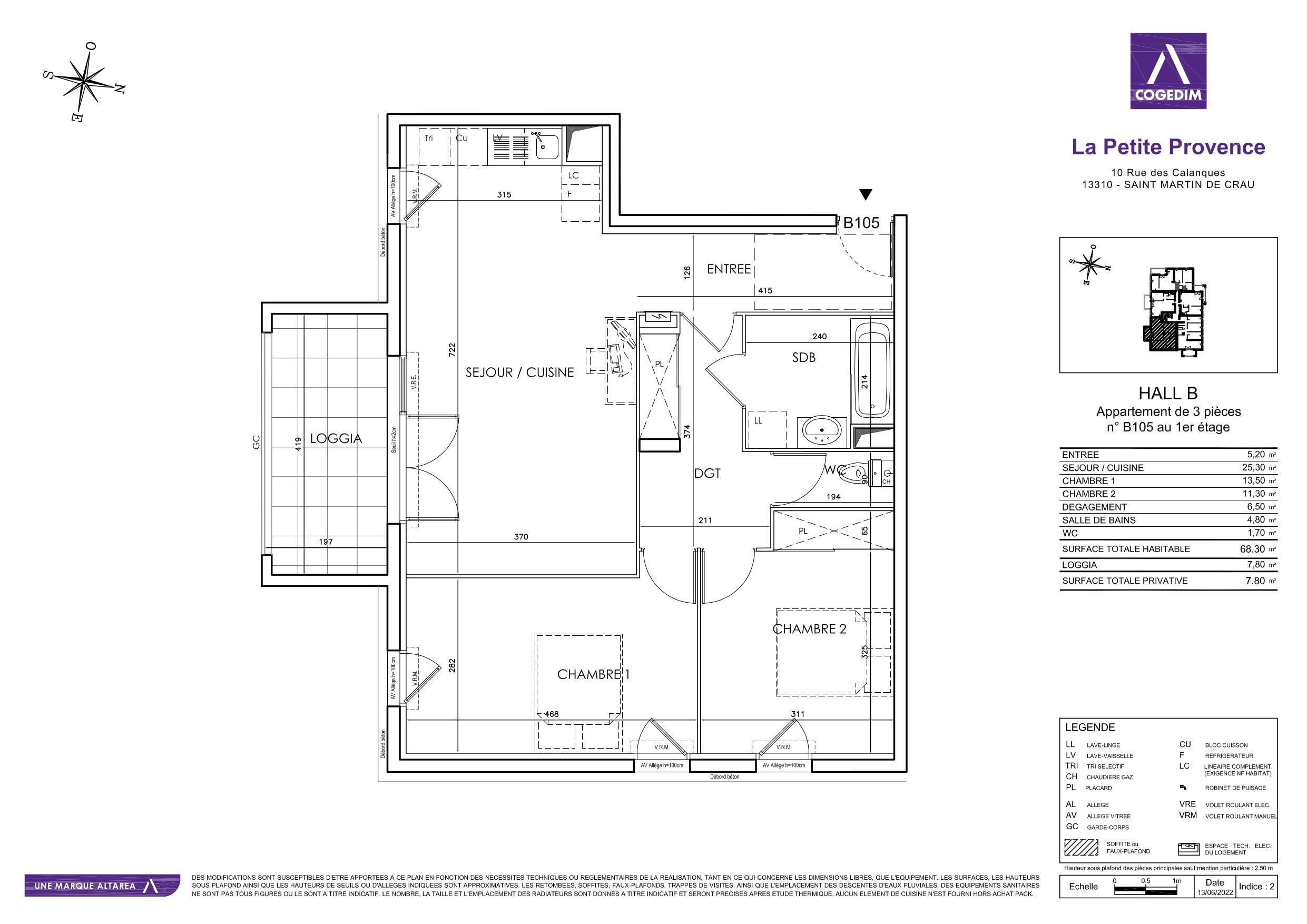
3 pièces 68.31m2

Référence : 8650

Conditions de location
849,00 € / mois cc

Charges
70,00 €

Dépôt de garantie
779,00 €

Honoraires agence
885,20 € TTC *


Disponibilité
Dès maintenant

Durée du bail
3 ans

Colocation
Acceptée


* Dont 204,90 € TTC pour la réalisation de l'état des lieux
Description

SAINT MARTIN DE CRAU - RESIDENCE LA PETITE PROVENCE - 10 rue des Calanques
Appartement neuf de type 3 de 68.30 m² - Composé d'une entrée, une salle de bains et WC séparés, deux chambres, un séjour ouvert sur la cuisine aménagée équipée (plaque et hotte), une terrasse de 7.80 m².
1 place de stationnement.

appartement disponible et visite possible à partir du 19/06/23.

VISITE UNIQUEMENT SUR DOSSIER ELIGIBLE GARANTIE DES LOYERS IMPAYES ET NE DEPASSANT PAS LES PLAFONDS DE REVENUS PINEL

• Zone B1 Loi Pinel : plafond de ressources des candidats revenu fiscal de référence de l'année N-2 : personne seule 35435 € / couple 47321 € / personne seule ou couple + 1 enfant à charge 56905 €
http://loipinel-gouv.org/conditions-loi-pinel/plafonds-ressource-pinel.php
• Immeuble sous G.L.I.

Mis à jour le 08/11/2025

Caractéristiques
  • 2 chambres
  • Étage : 1
  • 1 salle d'eau
  • 1 WC
  • Terrasse
  • 1 parking
  • Copropriété
  • Construit Neuf
Inclus dans les charges
Entretien bâtiment
Eau froide
Ménage
Relevés techniques
DPE : 35
GES : 6

Diagnostic réalisé le: 08/06/23


Production eau chaude
Individuel Gaz

Production chauffage
Individuel Électrique


Les informations sur les risques auxquels ce bien est exposé sont disponibles sur le site Géorisques: www.georisques.gouv.fr

Biens similaires