Studio meublé 690,00 € cc

Studio Route de Martel de Janville 74190 Passy

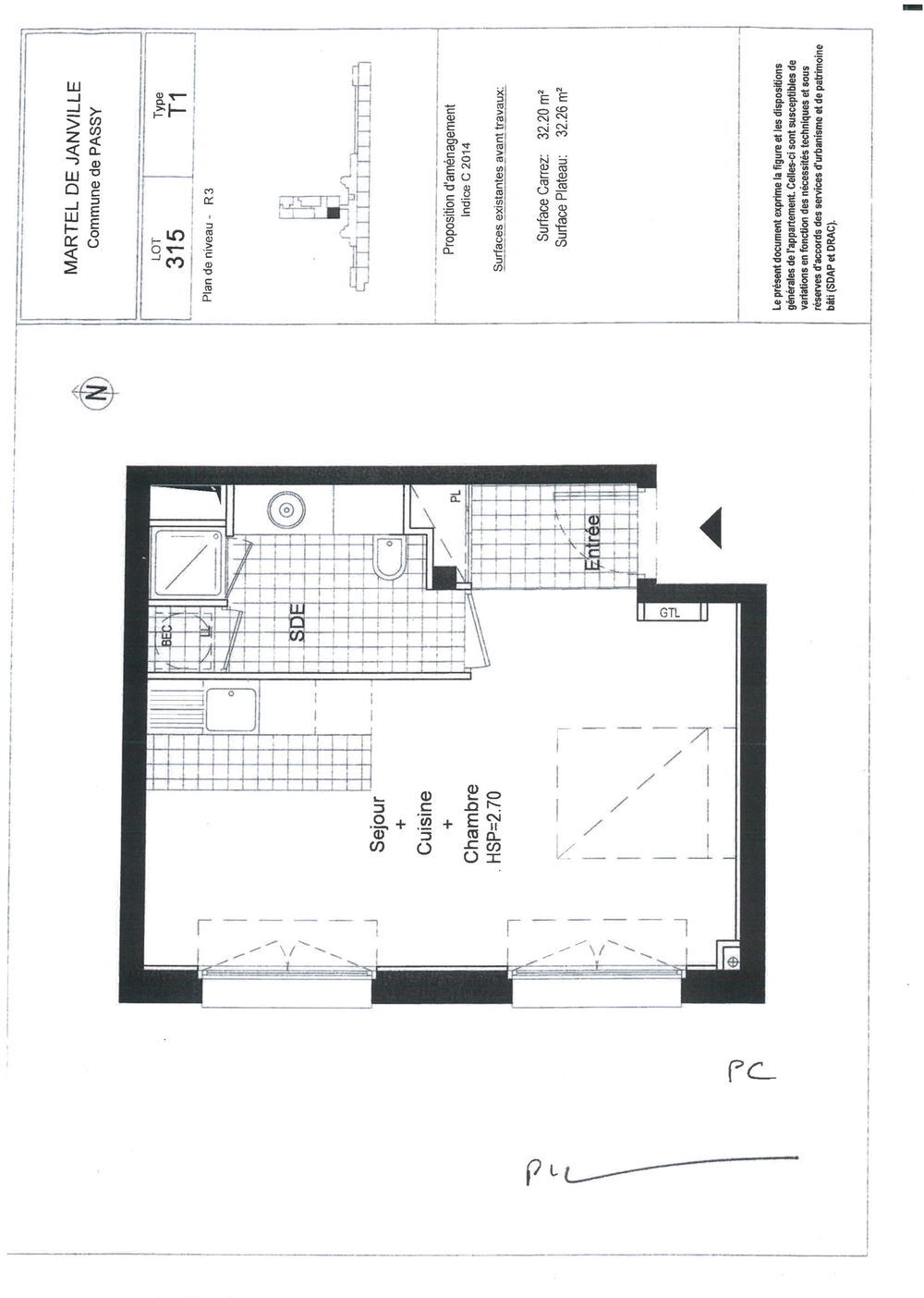
1 pièce 30m2

Référence : 2011

Conditions de location
690,00 € / mois cc

Charges
70,00 €

Dépôt de garantie
1 300,00 €

Honoraires agence
328,08 € TTC *


Disponibilité
Dès maintenant

Durée du bail
1 an


* Dont 90,00 € TTC pour la réalisation de l'état des lieux
Description

PASSY - Plateau d'Assy - Résidence Martel de Janville, Studio de 30 m² au 3ème étage avec ascenseur. Comprenant une entrée avec vidéophone, placard, salle d'eau avec douche, miroir, vasque, wc, sèche serviette et lave linge, ballon d'eau chaude. Séjour avec parquet, coin cuisine équipée : four, hotte, plaque vitro, réfrigérateur/congélateur, placard.
Libre de suite
Chauffage et eau compris dans les charges.
Réf : 315

Mis à jour le 25/10/2025

Caractéristiques
  • Étage : 3
  • 1 salle d'eau
  • 1 WC
  • Gardien
  • Ascenseur
  • Local à vélo
  • Piscine
  • Copropriété
  • Construit Après 1990
État et prestations

État général
Bon


Équipements
Plaques de cuisson
Four
Réfrigérateur
Lave-linge
Hotte Aspirante
Inclus dans les charges
Entretien bâtiment
Chauffage
Eau froide
Eau chaude
Relevés techniques

Traversant
Non

Vitrage
Double


Diagnostic de performance énergétique : Non soumis au DPE

Production eau chaude
Individuel Électrique

Production chauffage
Collectif


Les informations sur les risques auxquels ce bien est exposé sont disponibles sur le site Géorisques: www.georisques.gouv.fr

Biens similaires