COEUR DE LOIRE A305 - 3 pièces Coueron 796,26 € cc

Rue Henri Gautier 44220 Couëron

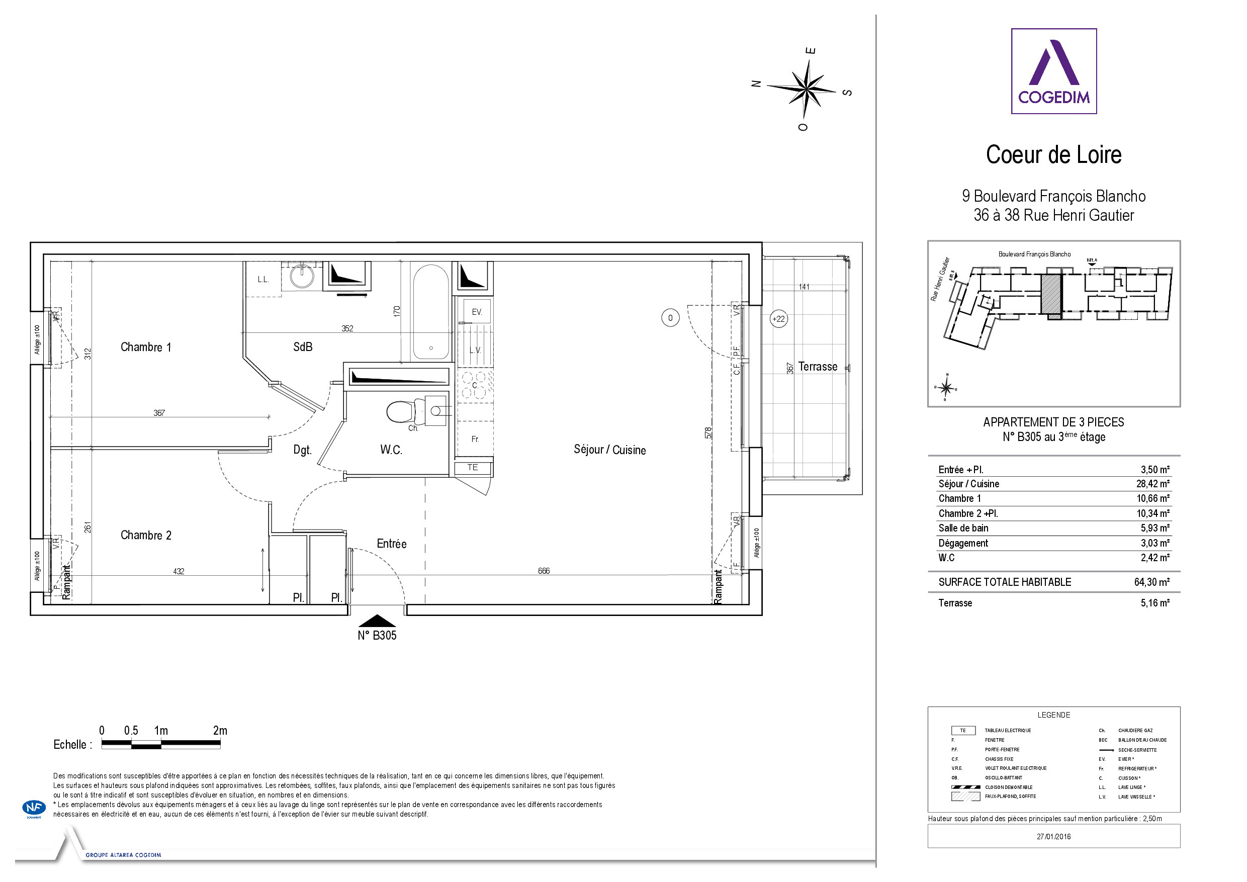
3 pièces 64.3m2

Référence : 21409

Conditions de location
796,26 € / mois cc

Charges
115,00 €

Dépôt de garantie
681,26 €

Honoraires agence
796,26 € TTC *


Disponibilité
Dès maintenant

Durée du bail
3 ans

Colocation
Non


* Dont 192,90 € TTC pour la réalisation de l'état des lieux
Description

COUËRON – Proche du bourg de Couëron - Résidence CŒUR DE LOIRE

La résidence se situe à moins de 10 minutes à pied des commerces, écoles et collèges à proximité. A 25 minutes du centre-ville de NANTES.

Agréable T3 de 60,30m² qui dessert une cuisine ouverte sur le salon, des wc séparés, une salle de bain ainsi que 2 chambres.
Logement loué avec une double place de parking.

Loyer de 796.26 € CC (dont 115€ de provisions sur charges)
Dépôt de garantie de 681.26€
Honoraires de location de 796.26€ dont 192,90€ pour l'établissement de l'état des lieux

Candidature à déposer sur Flatbay

“Les informations sur les risques auxquels ce bien est exposé sont disponibles sur le site Géorisques : www.georisques.gouv.fr”.

Mis à jour le 24/10/2025

Caractéristiques
  • 2 chambres
  • Étage : 3
  • 1 salle d'eau
  • 1 baignoire
  • 1 WC
  • Bâtiment de : 4 étages
  • 2 parkings
  • Ascenseur
  • Balcon
  • Local à vélo
  • Copropriété
  • Construit Après 1990
État et prestations

État général
Bon


Équipements
Plaques de cuisson
Four
Réfrigérateur
Lave-vaisselle
Fibre
Hotte Aspirante
Vaisselle
Thermostat
Inclus dans les charges
Entretien bâtiment
Relevés techniques

Traversant
Non

Vitrage
Double


DPE : 71
GES : 12

Diagnostic réalisé le: 08/07/25


Production eau chaude
Individuel Gaz

Production chauffage
Individuel Gaz


Les informations sur les risques auxquels ce bien est exposé sont disponibles sur le site Géorisques: www.georisques.gouv.fr

Biens similaires