Appartement nu à louer 1 072,24 € cc

Rue des Martyrs de Châteaubriant 78570 Andrésy

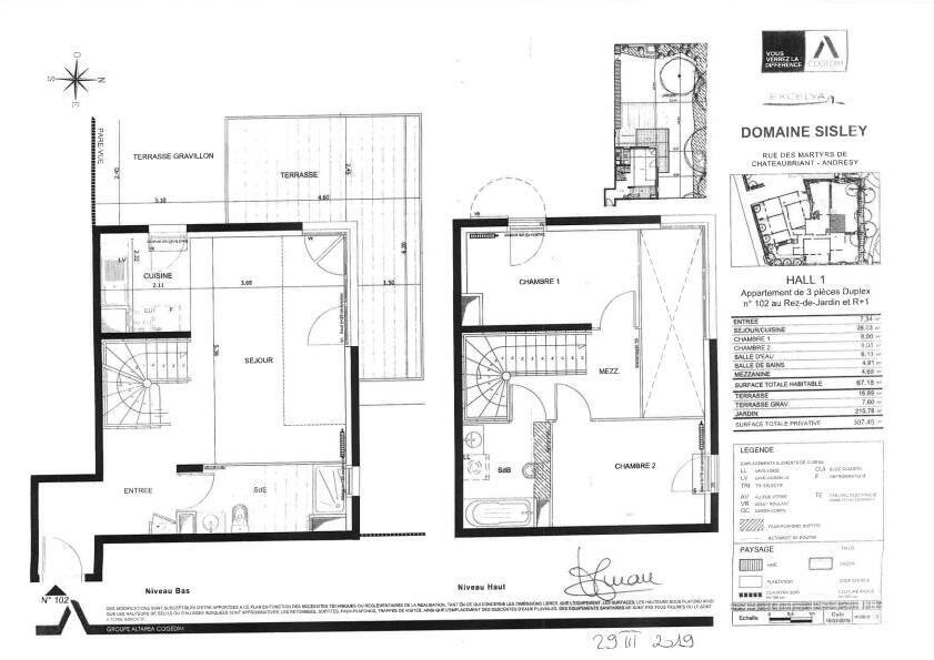
3 pièces 67.18m2

Référence : 2141

Conditions de location
1 072,24 € / mois cc

Charges
130,00 €

Dépôt de garantie
942,24 €

Honoraires agence
873,34 € TTC


Disponibilité
Dès maintenant

Durée du bail
3 ans

Colocation
Non

Description

Rue des martyrs de Châteaubriant, A 5' de la station "Maurecourt" (ligne J reliant Paris St Lazare en 26min, dans une résidence récente (2020) "Domaine Sisley". Un appartement 3 pièces en DUPLEX de 67.18m² (lot 102) en rez de jardin et R+1 comprenant : une entrée, un séjour sur une terrasse de 17m², une cuisine ouverte aménagée équipée donnant sur une terrasse de 7,60m² et un jardin de 216m², une salle d'eau avec wc. A l'étage : 2 chambres, une salle de bains avec wc, une mezzanine.
Chauffage Collectif.

UN EMPLACEMENT DE PARKING EN SOUS SOL

Logement disponible début septembre
soumis aux conditions de ressources PINEL.

Mis à jour le 27/10/2025

Caractéristiques
  • 2 chambres
  • Étage : RDC
  • 2 salles d'eau
  • 1 douche
  • 1 baignoire
  • 2 WCs
  • Terrasse
  • 1 parking
  • Jardin
  • Ascenseur
  • Copropriété
  • Construit Neuf
État et prestations

État général
Bon


Transports en commun

maurecourt
à 217 m

Inclus dans les charges
Chauffage
Eau chaude
Relevés techniques
DPE : 161
GES : 28

Diagnostic réalisé le: Non renseigné


Production eau chaude
Collectif

Production chauffage
Collectif


Les informations sur les risques auxquels ce bien est exposé sont disponibles sur le site Géorisques: www.georisques.gouv.fr

Biens similaires