595,00 € cc

Louviers - Green Valley

Louviers - Green Valley

Rue Général Jacques Pâris de Bollardière 27400 Louviers
2 pièces 41.76 m2
Référence : 21552
595,00 € cc
14,25 € m²

Conditions de location

595,00 € / mois cc

Charges
55,00 €
Dépôt de garantie
540,00 €
Honoraires agence
459,36 € TTC *
Disponibilité
Dès maintenant
Durée du bail
3 ans
Colocation
Non

* Dont 125,28 € TTC pour la réalisation de l'état des lieux

Informations

1 chambre
Étage : 2
1 salle d'eau
1 douche
1 WC
1 parking
Ascenseur
Copropriété
Adapté PMR
Construit Neuf

Description

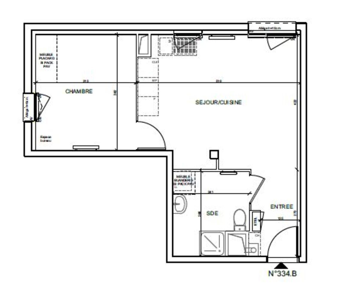
Hall Sunrise, appartement deux pièces au 3ème étage avec ascenseur.
Il comprend une entrée, un séjour avec cuisine aménagée et semi-équipée.
Une chambre et une salle d'eau.

Chauffage individuel au gaz (faible consommation d'énergie).
Un emplacement de stationnement extérieur

Loyer (charges de copropriété incluses) : 595 €

Pour visiter, déposer votre candidature en ligne sur Flatbay
Mis à jour le 21/11/2025

Équipements

Plaques de cuisson
Hotte Aspirante
Thermostat

Relevés techniques

Traversant
Non
Vitrage
Double

DPE : 94
A
B
C
D
E
F
G
GES : 15
A
B
C
D
E
F
G
Diagnostic réalisé le: 07/11/2024

Montant estimé des dépenses annuelles d'énergie pour un usage standard : entre 459 € et 621 € par an.

Production eau chaude
Individuel Gaz

Production chauffage
Individuel Gaz


Les informations sur les risques auxquels ce bien est exposé sont disponibles sur le site Géorisques : www.georisques.gouv.fr

État et prestations

État général
Excellent

Cuisine
Prestations
État
Salles de bain
Prestations
État
Sol(s)
Prestations
État
Fenêtres
Prestations
État