A LOUER agréable T2 avec jardin et parking 650,00 € cc

Rue du Passage de la Soque 33980 Audenge

2 pièces 45.61m2

Référence : 24493

Conditions de location
650,00 € / mois cc

Charges
50,00 €

Dépôt de garantie
600,00 €

Honoraires agence
501,71 € TTC *


Disponibilité
Dès maintenant

Durée du bail
3 ans

Colocation
Acceptée


* Dont 136,83 € TTC pour la réalisation de l'état des lieux
Description

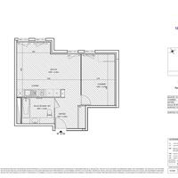
Au sein de la résidence L’ESTEY, retrouvez ce bel appartement T2 de 45,61 m2 au rdc du bâtiment C avec une terrasse de 7,90 m2 exposée Sud dans le prolongement du séjour et un jardin clôturé à jouissance privative de 75 m2 environ. Les embellissements de l'appartement ayant été refaits tout dernièrement, le bien dispose également du jardin privatif le plus grand de la résidence.

Située à Audenge, sur le Bassin d’Arcachon entre Biganos et Lanton, entre rivière et mer, entre centre ville et forêt, la résidence L’ESTEY offre un cadre de vie protégé et privilégié et vous fera bénéficier d' une qualité de vie recherchée à proximité des services, commerces et transports en commun ( bus CITRAM ).

Ce T2 est composé d'une entrée avec placard, d'un lumineux séjour avec cuisine ouverte aménagée et équipée ( meubles bas, un évier avec un bac et égouttoir, une plaque de cuisson 2 feux, une hotte, réfrigérateur, crédence et plan de travail, alimentation et évacuations pour LL/LV ), d'une chambre, d'une salle d'eau ( meuble vasque et vasque compris robinetterie mitigeuse, miroir avec bandeau lumineux, receveur de douche et robinetterie de type mitigeur thermostatique avec flexible, douchette et pare-douche, sèche-serviette ) avec WC.

Un parking extérieur ( n° 33 ) est intégré à cette location.

T2 disponible à la location : immédiatement.

Loyer hors charges/mois : 600 €
Charges locatives/mois : 50 € ( entretien et maintenance des parties communes et biens d’équipements communs, espaces verts communs et provision d’eau froide )
Dépôt de garantie : 600 €
Honoraires d'agence : 501,71 € TTC (dont 136,83 € d'état des lieux) .

ATTENTION : SEULES LES CANDIDATURES EFFECTUÉES SUR NOTRE PLATEFORME LOCATION SERONT ÉTUDIÉES

Mis à jour le 27/10/2025

Caractéristiques
  • 1 chambre
  • Étage : RDC
  • 1 salle d'eau
  • 1 douche
  • 1 WC
  • Bâtiment de : 2 étages
  • Terrasse
  • 1 parking
  • Jardin
  • Local à vélo
  • Copropriété
  • Construit Après 1990
État et prestations

État général
Bon


Équipements
Plaques de cuisson
Réfrigérateur
Hotte Aspirante
Inclus dans les charges
Entretien bâtiment
Eau froide
Relevés techniques

Orientation
Sud

Traversant
Non

Vitrage
Double


DPE : 72
GES : 12

Diagnostic réalisé le: 02/04/25


Estimation facture d'énergie
360 à 540 € / an


Production eau chaude
Individuel Gaz

Production chauffage
Individuel Gaz


Les informations sur les risques auxquels ce bien est exposé sont disponibles sur le site Géorisques: www.georisques.gouv.fr

Biens similaires