Appartement nu à louer 517,00 € cc

Appartement Rue Barre 77230 Juilly

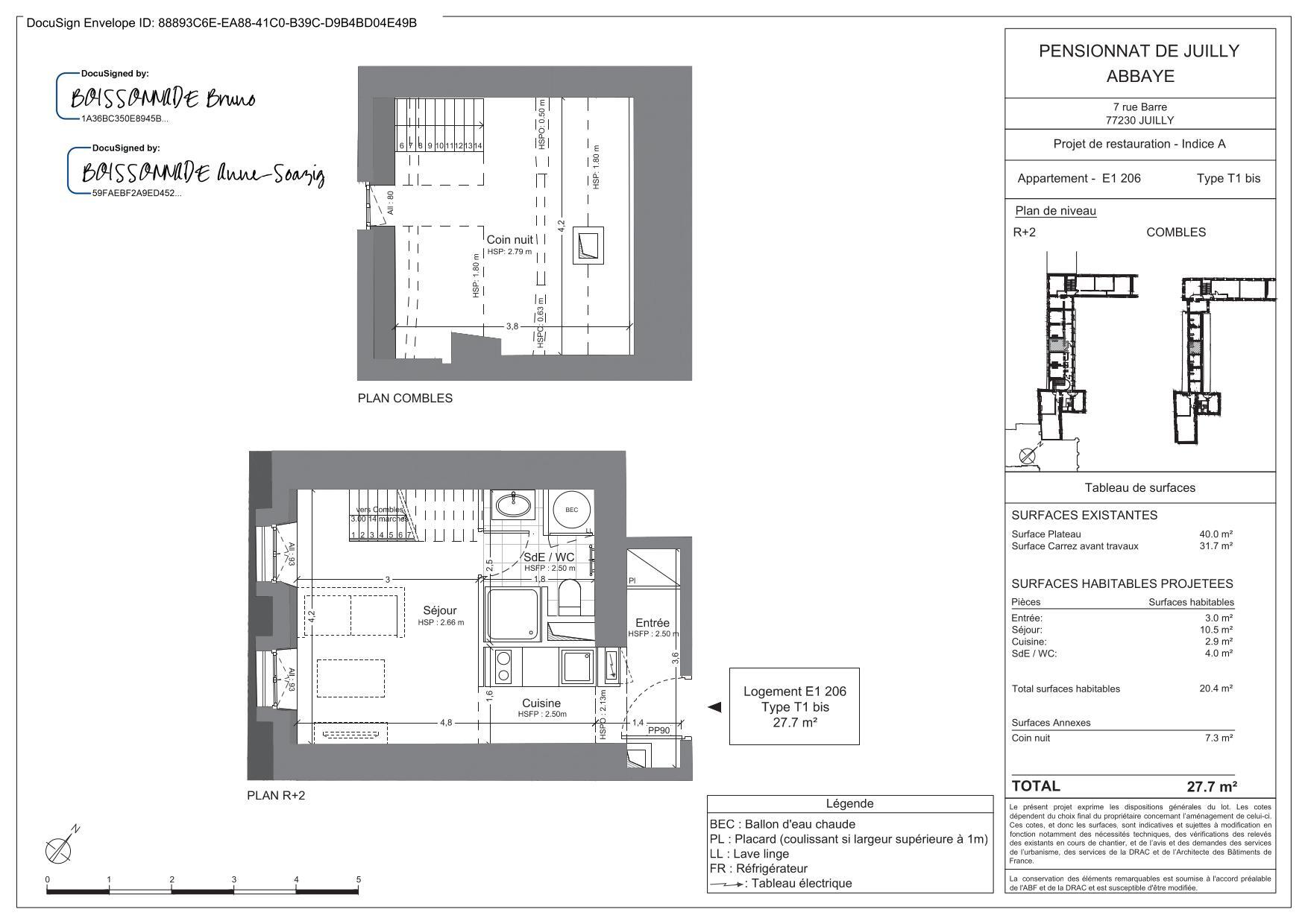
1 pièce 27.7m2

Référence : 30163

Conditions de location
517,00 € / mois cc

Charges
47,00 €

Dépôt de garantie
470,00 €

Honoraires agence
304,70 € TTC


Disponibilité
Disponible le 01/11

Durée du bail
3 ans

Colocation
Non

Description

Avec son charme pittoresque et son ambiance sereine, Juilly est l'endroit idéal pour échapper à l'agitation urbaine.
Situé dans un cadre exceptionnel, entre richesses architecturales et parcs remarquables, le plus ancien pensionnat de France, fondé en 1638 sur Ordre de Louis XIII, vient tout juste d'être réhabilité en logements d'exceptions.
A seulement 5' en voiture de la Gare "Dammartin-Juilly-St Mard" (ligne K et TER) reliant Paris Gare du Nord en 30 minutes. A proximité des Aéroports Roissy-Charles de Gaulle et du Bourget.
Un appartement de type T1 BIS d'une surface de 27,70m²situé au 2éme étage.
Il est composé: d'une séjour ouvert sur une cuisine aménagée et équipée, d'une alcôve, d'une salle d'eau avec wc.

1 emplacement de parking extérieur sécurisé.


Merci de déposer votre dossier complet sur votre profil FLATBAY afin qu'il soit au préalable étudié. Si ce dernier répond aux critères : Revenus : 3 x le montant du loyer CC) vous recevrez une invitation de visite. Tout dossier incomplet sera refusé.
Les dossiers garants sont acceptés uniquement pour les statuts étudiants.

Mis à jour le 17/10/2025

Caractéristiques
  • Étage : 2
  • 1 salle d'eau
  • 1 WC
  • 1 parking
  • Copropriété
  • Construit Avant 1946
Inclus dans les charges
Entretien bâtiment
Eau froide
Relevés techniques

Traversant
Non

Vitrage
Double


Diagnostic de performance énergétique : En cours

Production eau chaude
Individuel Électrique

Production chauffage
Individuel Électrique


Les informations sur les risques auxquels ce bien est exposé sont disponibles sur le site Géorisques: www.georisques.gouv.fr

Biens similaires