Maison T5 - 124,48m2 811 800 €

Maison T5 - 124,48m2

5 pièces 124.48m2

Référence : 41781

Conditions de vente
811 800 € 6 522 € / m²

Charges immeuble
Non renseignée

Taxe foncière
Non renseignée

Description

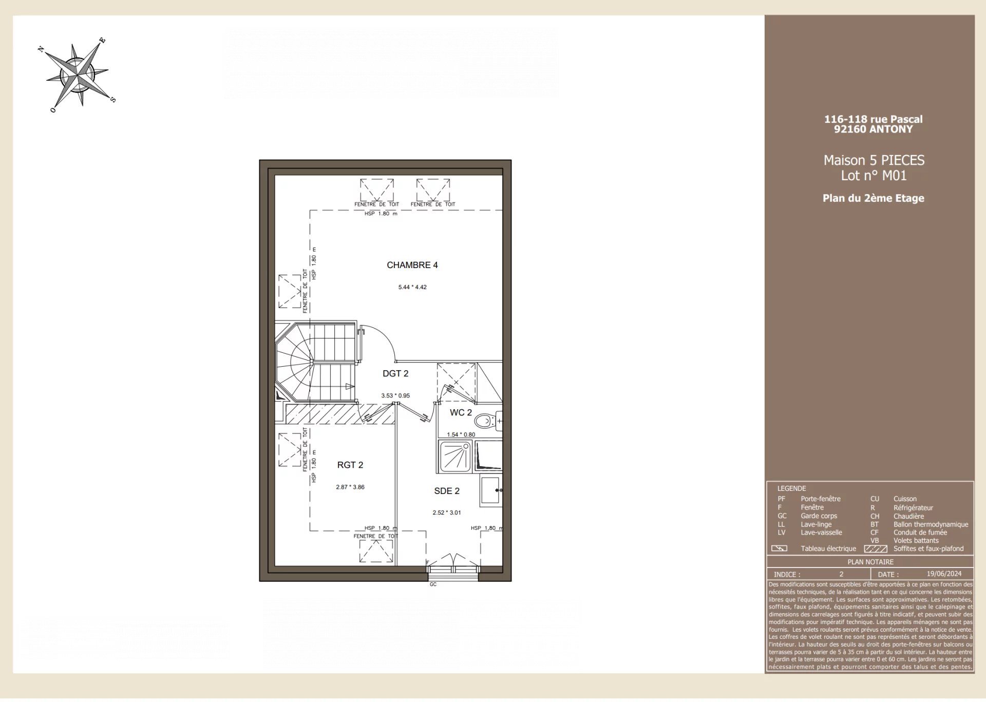
Maison T5 - 124,48m2 Maison de 124,48m2, avec son allée et parking privatif, elle est composée: Au rez de chaussée : un séjour/cuisine de 41,76m2, d'une salle d'eau de 3,75m2. Un grand espace extérieur - une terrasse de 9,60m, et de deux jardins un de 89m2 et le second de 16m2. Au premier étage : 3 chambres de 14,89m2, 10,33m2 et 10,70m2, d'une salle de bain, des toilettes. Au 2ème étage : un espace parental, avec une chambre de 15,40m2, une salle d'eau de 6,73m3, des toilettes et un espace de rangement de 6,73m2. Cette maison est située au coeur d'Antony à proximité des commerces, écoles et transports

Mis à jour le 05/10/2025

Caractéristiques
  • 4 chambres
  • Étage : RDC
  • 1 salle d'eau
  • 2 douches
  • 2 WCs
  • Bâtiment de : 3 étages
  • Terrasse
  • 1 parking
  • Ascenseur
  • Adapté PMR
  • Vue exceptionelle

Surface du terrain bâti inclus
105 m²

Équipements
Fibre
Relevés techniques
Diagnostic de performance énergétique :

Les informations sur les risques auxquels ce bien est exposé sont disponibles sur le site Géorisques: www.georisques.gouv.fr

Candidater / S'inscrire à une visite
Proposé par
Signaler cette annonce



Biens similaires