Appartement T3 duplex 780 000 €

T3 duplex

3 pièces 63.8m2

Référence : 41790

Conditions de vente
780 000 € 12 226 € / m²

Charges immeuble
Non renseignée

Taxe foncière
Non renseignée

Description

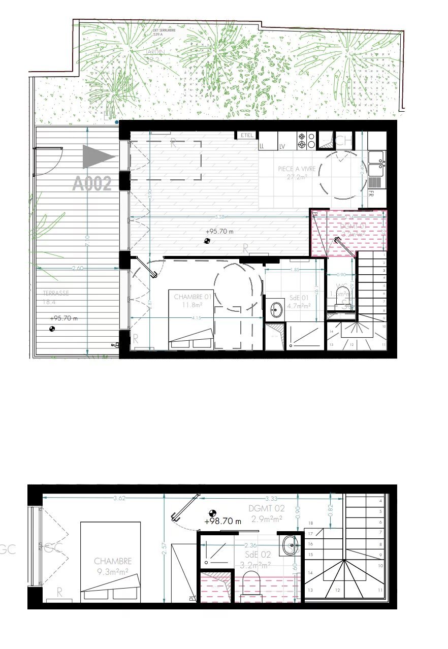
Appartement T3 duplex Proche RER B, cet appartement T3 duplex est composé au RDC : d'une belle pièce à vivre de 27,20m2 donnant sur une terrasse et un jardin privatif, d'une salle d'eau, une chambre de plus de 11m2, L'étage est composé : d'une salle de bain et d'une chambre de plus de 9m2. Ce bien est vendu avec une place de parking. Dans une résidence moderne, à proximité des commerces, écoles et transports.

Mis à jour le 05/10/2025

Caractéristiques
  • 2 chambres
  • Étage : RDC
  • 2 douches
  • 1 WC
  • Bâtiment de : 4 étages
  • Terrasse
  • Ascenseur
  • Vue exceptionelle

Surface du terrain bâti inclus
32.2 m²

Équipements
Fibre
Relevés techniques
Diagnostic de performance énergétique :

Les informations sur les risques auxquels ce bien est exposé sont disponibles sur le site Géorisques: www.georisques.gouv.fr

Candidater / S'inscrire à une visite
Proposé par
Signaler cette annonce



Biens similaires