Appartement T1 de 32,10M2 avec Balcon à Villiers sur Marne 192 000 €

Appartement T1 de 32,10M2 avec Balcon à Villiers sur Marne

1 pièce 31.2m2

Référence : 51210

Conditions de vente
192 000 € 6 154 € / m²

Charges immeuble
Non renseignée

Taxe foncière
Non renseignée

Description

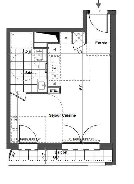
Appartement T1 de 32,10M2 avec Balcon à Villiers sur Marne Idéalement situé, ce bâtiment est au porte de la nouvelle ligne de métro 15 et du RER E, traversé par un vaste jardin métropolitain. L'ensemble dans une ambiance conviviale et verdoyante, et dans un quartier d'avenir. L'appartement proposé se compose : - d'une entrée de 2m2, - d'un séjour/cuisine de 23,60m3, - d'une salle de douche de 5,6m2, - un espace extérieur avec un balcon de 3,20m2 Cet immeuble est à proximité de nombreuses écoles et commerces. Pour plus d'information, merci de nous contacter directement.

Mis à jour le 05/10/2025

Caractéristiques
  • Étage : 3
  • 1 douche
  • Bâtiment de : 16 étages
  • Ascenseur
  • Balcon
  • Vue exceptionelle
Relevés techniques

Orientation
Ouest


Diagnostic de performance énergétique :

Les informations sur les risques auxquels ce bien est exposé sont disponibles sur le site Géorisques: www.georisques.gouv.fr

Candidater / S'inscrire à une visite
Proposé par
Signaler cette annonce



Biens similaires