Appartement T2 - 45,4m2 avec balcon de 17,5m2 263 000 €

T2 - 45,4m2 avec balcon de 17,5m2

2 pièces 45.3m2

Référence : 51211

Conditions de vente
263 000 € 5 806 € / m²

Charges immeuble
Non renseignée

Taxe foncière
Non renseignée

Description

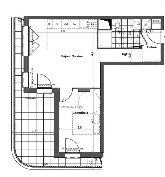
Appartement T2 - 45,4m2 avec balcon de 17,5m2 Idéalement situé, ce bâtiment est au pied du RER 3 et de la future ligne de métro 15. Villiers-sur-Marne est une ville dynamique qui a su préserver son authenticité et son cadre de vie verdoyant. Cet appartement se compose : - d'une entrée de 3,5m2, - d'un séjour/cuisine de 22,30M2, - d'une chambre de 12m2 avec accès au balcon, - d'une grande salle de bain de 5m2, - d'un espace extérieur avec un balcon de plus de 17m2. Ce bien est à proximité des écoles et commerces. Pour plus d'information, merci de nous contacter directement.

Mis à jour le 05/10/2025

Caractéristiques
  • 1 chambre
  • Étage : 7
  • 1 salle d'eau
  • Bâtiment de : 15 étages
  • Ascenseur
  • Vue exceptionelle
Relevés techniques
Diagnostic de performance énergétique :

Les informations sur les risques auxquels ce bien est exposé sont disponibles sur le site Géorisques: www.georisques.gouv.fr

Candidater / S'inscrire à une visite
Proposé par
Signaler cette annonce



Biens similaires