688 000 €
10 121 € / m²

Appartement T3 - Duplex à Vanves

Appartement T3 - Duplex à Vanves

92170 Vanves
3 pièces 67.98 m2
Référence : 51372
688 000 €
10 121 € / m²

Conditions de vente

688 000 €

Charges immeuble
Non renseignée
Taxe foncière
Non renseignée

Informations

2 chambres
Étage : RDC
1 salle d'eau
Bâtiment de : 4 étages
Terrasse
Ascenseur
Vue exceptionelle

Description

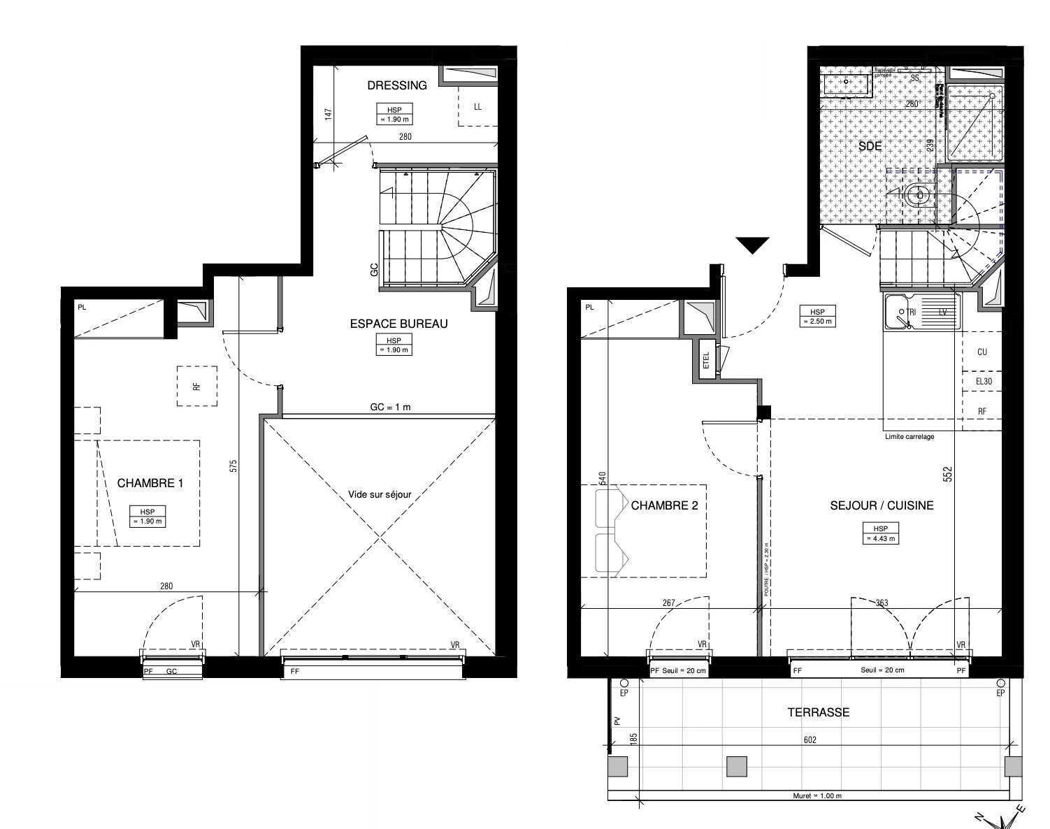
Appartement T3 - Duplex à Vanves A seulement 1,3km de Paris, Vanves est une ville moderne avec des espaces verts, des commerces et de nombreuses écoles. Proche du métro ligne 12, cet appartement T3 en duplex se compose : Au RDC : - d'un séjour/cuisine de 21,93m2, - d'une chambre de 13 m2, - d'une salle de bain de 5,71m2 - d'une terrasse de plus de 10m2 A l'étage : - d'une chambre de 15,60m2, - d'un espace bureau ouvert de 7,84m2 - d'un dressing de 3,85m2. Ce bien est vendu avec une place de parking. Pour plus d'information complémentaire, merci de nous contacter directement. -
Mis à jour le 12/01/2026

Relevés techniques

Diagnostic de performance énergétique :

Production eau chaude

Production chauffage


Les informations sur les risques auxquels ce bien est exposé sont disponibles sur le site Géorisques : www.georisques.gouv.fr