289 000 €

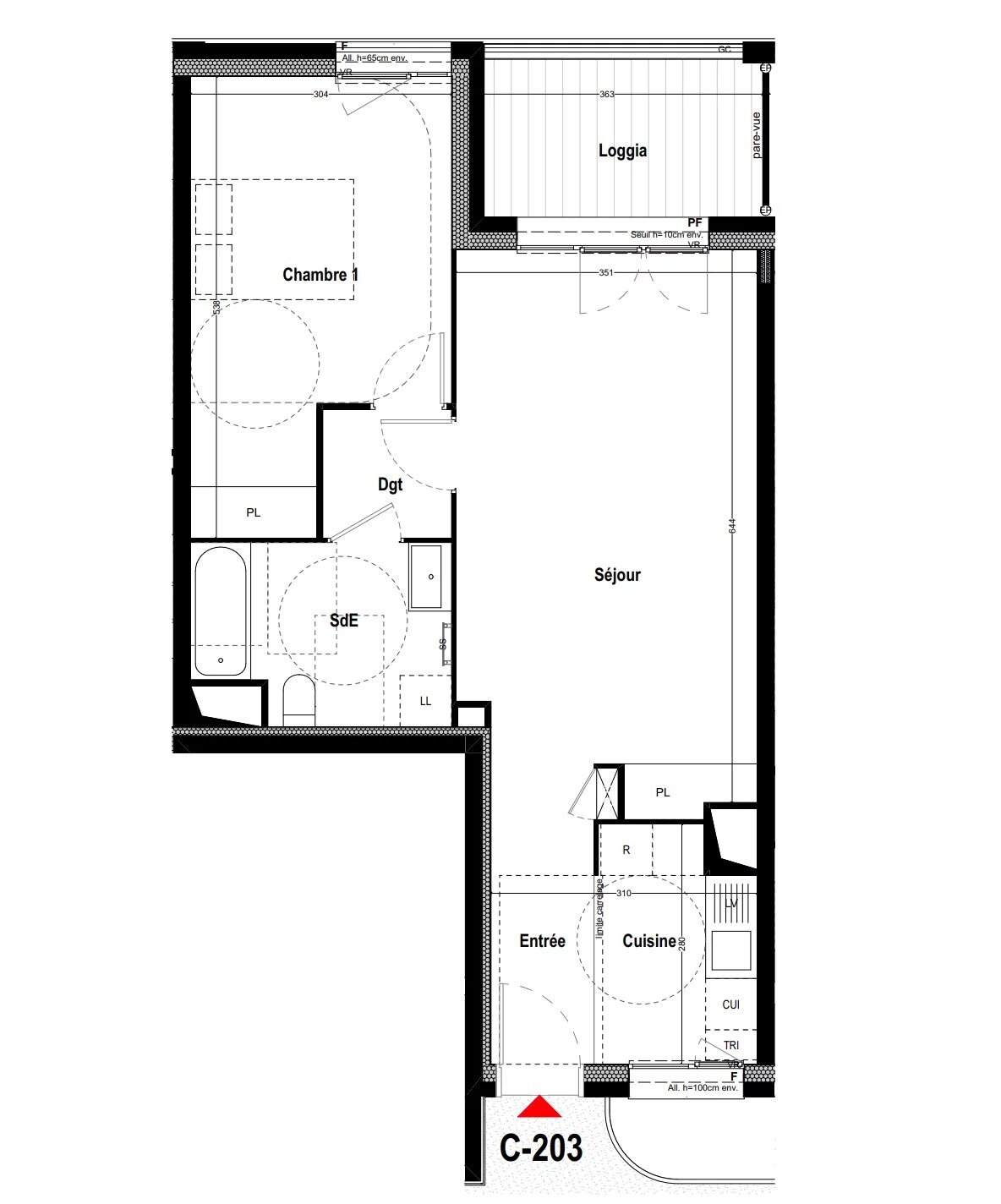
Appartement T2 de 52,90m2 - avec loggia de 6m2

Appartement T2 de 52,90m2 - avec loggia de 6m2

92000 Nanterre
2 pièces 52.9 m2
Référence : 51904
289 000 €
5 463 € m²

Conditions de vente

289 000 €

Charges immeuble
Non renseignée
Taxe foncière
Non renseignée

Informations

1 chambre
Étage : RDC
1 douche
Vue exceptionelle

Description

Appartement T2 de 52,90m2 - avec loggia de 6m2 Idéalement placé, à quelques minutes de la Défense, un lieu rare conçu pour ceux qui rêvent d'un cadre paisible. Cet appartement se compose : - d'une entrée de 4,20m2, - d'un séjour de 21,61m2, - cuisine 4,91, - chambre 13,89, - salle d'eau de 6,04. Ce bien est vendu avec une place de Parking. Pour plus d'information, merci de nous contacter directement.
Mis à jour le 20/11/2025

Relevés techniques

Diagnostic de performance énergétique :

Production eau chaude

Production chauffage


Les informations sur les risques auxquels ce bien est exposé sont disponibles sur le site Géorisques : www.georisques.gouv.fr