189 300 €

Maison T3 avec jardin

Maison T3 avec jardin

85100 Les Sables-d'Olonne
3 pièces 63 m2
Référence : 51908
189 300 €
3 005 € m²

Conditions de vente

189 300 €

Charges immeuble
Non renseignée
Taxe foncière
Non renseignée

Informations

2 chambres
2 douches
1 WC
Bâtiment de : 1 étage
Terrasse
Vue exceptionelle

Surface du terrain bâti inclus
26.6 m²

Description

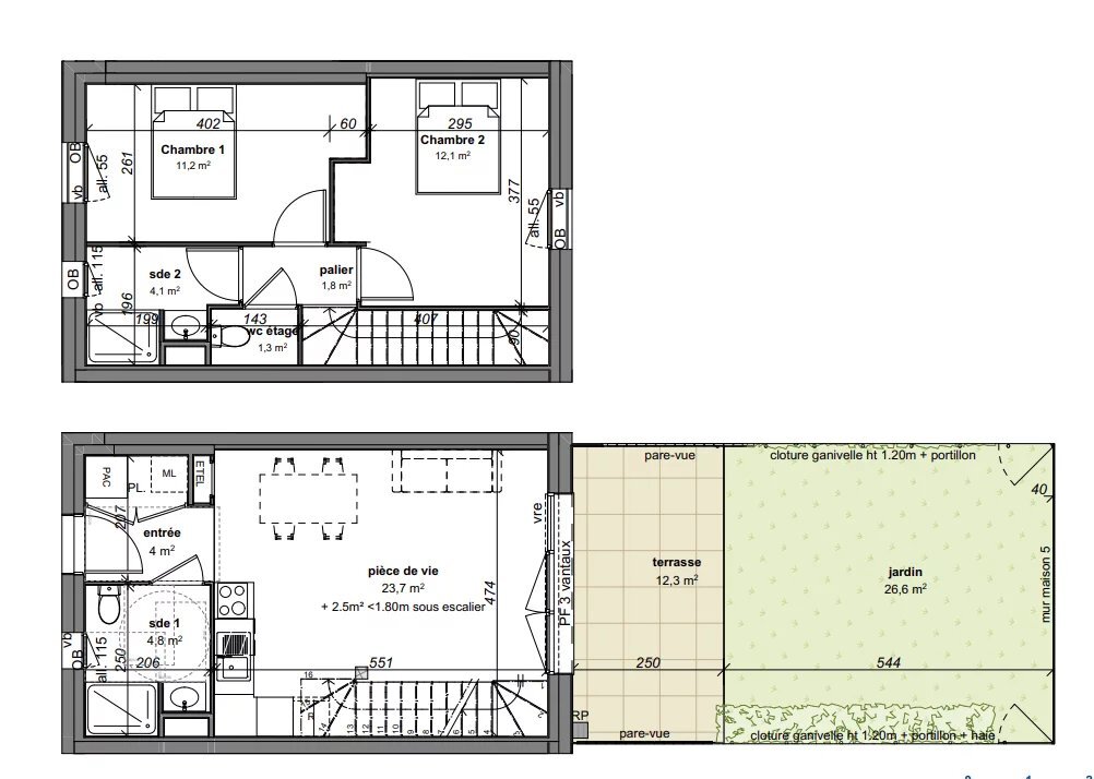
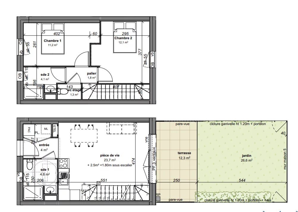
Maison T3 avec jardin Dans l'un des lieux les plus emblématiques de la côte vendéenne. Cette maison se compose : Au RDC : - d'une belle entrée de 4m2, - un espace de vie de plus de 23m2, - d'une salle de douche, - et d'un extérieur avec terrasse et jardin. A l'étage : - Un palier, - 2 chambres, - et une salle de douche. Cette maison est idéalement place à 10 minutes de la plage et de la gare, proche des commerces et écoles. Le prix affiché est en BRS, pour plus d'information merci de nous contacter directement.
Mis à jour le 20/11/2025

Relevés techniques

Diagnostic de performance énergétique :

Production eau chaude

Production chauffage


Les informations sur les risques auxquels ce bien est exposé sont disponibles sur le site Géorisques : www.georisques.gouv.fr