436 000 €

Maison T3 avec jardin

Maison T3 avec jardin

85100 Les Sables-d'Olonne
3 pièces 74.1 m2
Référence : 54452
436 000 €
5 884 € m²

Conditions de vente

436 000 €

Charges immeuble
Non renseignée
Taxe foncière
Non renseignée

Informations

2 chambres
Étage : RDC
1 salle d'eau
1 douche
1 WC
Bâtiment de : 1 étage
Terrasse
Vue exceptionelle

Surface du terrain bâti inclus
45.9 m²

Description

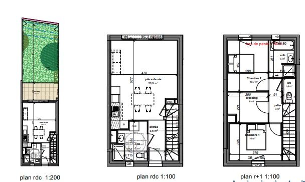
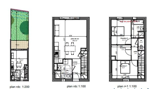
Maison T3 avec jardin Dans l'un des lieux les plus emblématiques de la côte vendéenne. Cette maison se compose : - d'une belle entrée de 3,3m2, - un espace de vie de plus de 26,9m2, - d'une salle de douche et d'une salle de bains, - de 2 chambres - d'un dressing - et d'un extérieur avec terrasse et jardin. Cette maison est idéalement place à 10 minutes de la plage et de la gare, proche des commerces et écoles. pour plus d'information merci de nous contacter directement.
Mis à jour le 20/11/2025

Relevés techniques

Diagnostic de performance énergétique :

Production eau chaude

Production chauffage


Les informations sur les risques auxquels ce bien est exposé sont disponibles sur le site Géorisques : www.georisques.gouv.fr