365 000 €
5 801 € / m²

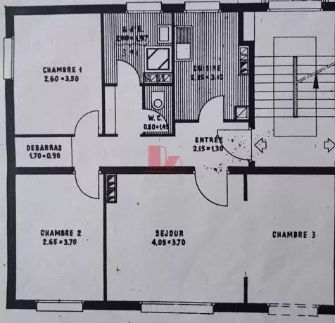
VANVES - Appartement 3/4 pièces - A rénover

VANVES - Appartement 3/4 pièces - A rénover

3a Rue François 1er 92170 Vanves
4 pièces 62.92 m2 Exclusivité
Référence : 54647
365 000 €
5 801 € / m²

Conditions de vente

365 000 €

Charges immeuble
3 636 € / an
Taxe foncière
Non renseignée
Honoraires TTC
15 014 € *

* Soit 349 986,00 € + honoraires de 4,29% TTC À la charge de l'acquéreur

Informations

2 chambres
Étage : 1
1 salle d'eau
1 WC
1 cave

Description

VANVES - Appartement 3/4 pièces - A rénover Au 1er étage d'un petit immeuble de 4 étages, un appartement 4 pièces de 63 m² à rénover entièrement (devis sur demande). Au calme et lumineux à proximité des commerces, des transports et des écoles. Vous pourrez l'aménager à votre convenance avec 2 ou 3 chambres, une salle de bains ou salle d'eau, un séjour, une cuisine, un wc indépendant. Une cave en sous sol complète le bien. Possibilité d'acquérir un garage dans la copropriété.
Mis à jour le 07/01/2026

Relevés techniques

Orientation
Ouest

Diagnostic de performance énergétique :

Production eau chaude

Production chauffage


Les informations sur les risques auxquels ce bien est exposé sont disponibles sur le site Géorisques : www.georisques.gouv.fr