176 000 €
1 814 € / m²

Local commercial

Local commercial

75015 Paris 15ème
0 pièce 97 m2
Référence : 55287
176 000 €
1 814 € / m²

Conditions de vente

176 000 €

Charges immeuble
Non renseignée
Taxe foncière
Non renseignée

Informations

Étage :

Description

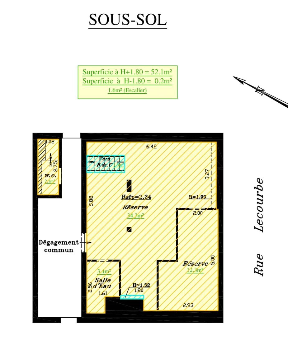
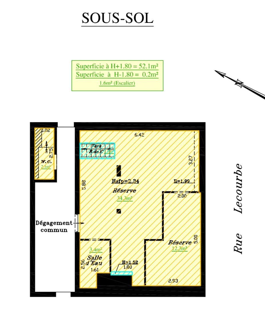
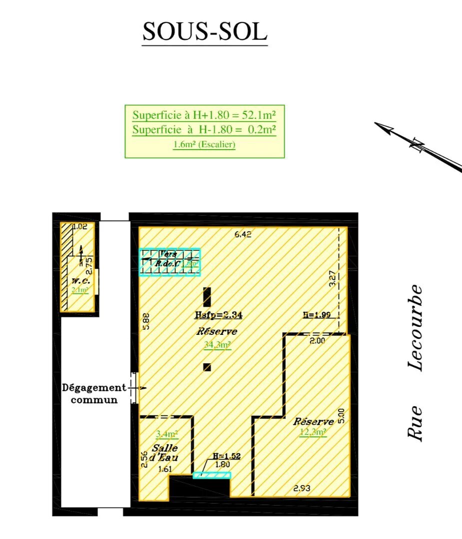
Local commercial Rue Lecourbe Sur un tronçon très alimentaire de la rue lecourbe (boulangerie, poissonnerie, traiteur, restos, chocolatiers, caviste, supermarché, Mcdo...) belle boutique de 97 m2 dont 47 de plain pied, en parfait état très bien entretenue et climatisée. possibilité de terrasse idéal pour de nombreuses activités. Sous-sol aménagé avec chambre froide informations complémentaires: frederic@odeonimmobilier.fr 0624728110 (10.00 % honoraires TTC à la charge de l'acquéreur.) Frederic GODRON (EI) Agent Commercial - Numéro RSAC : - .
Mis à jour le 07/01/2026

Relevés techniques

Diagnostic de performance énergétique :

Production eau chaude

Production chauffage


Les informations sur les risques auxquels ce bien est exposé sont disponibles sur le site Géorisques : www.georisques.gouv.fr