1 500,00 € cc
9,68 € / m²

Local commercial

Local commercial

47290 Cancon
0 pièce 155 m2
Référence : 56933
1 500,00 € cc
9,68 € / m²

Conditions de location

1 500,00 € / mois cc

Charges
761,00 €
Dépôt de garantie
700,00 €
Honoraires agence
Non disponible
Disponibilité
Dès maintenant
Durée du bail

Informations

Étage :

Description

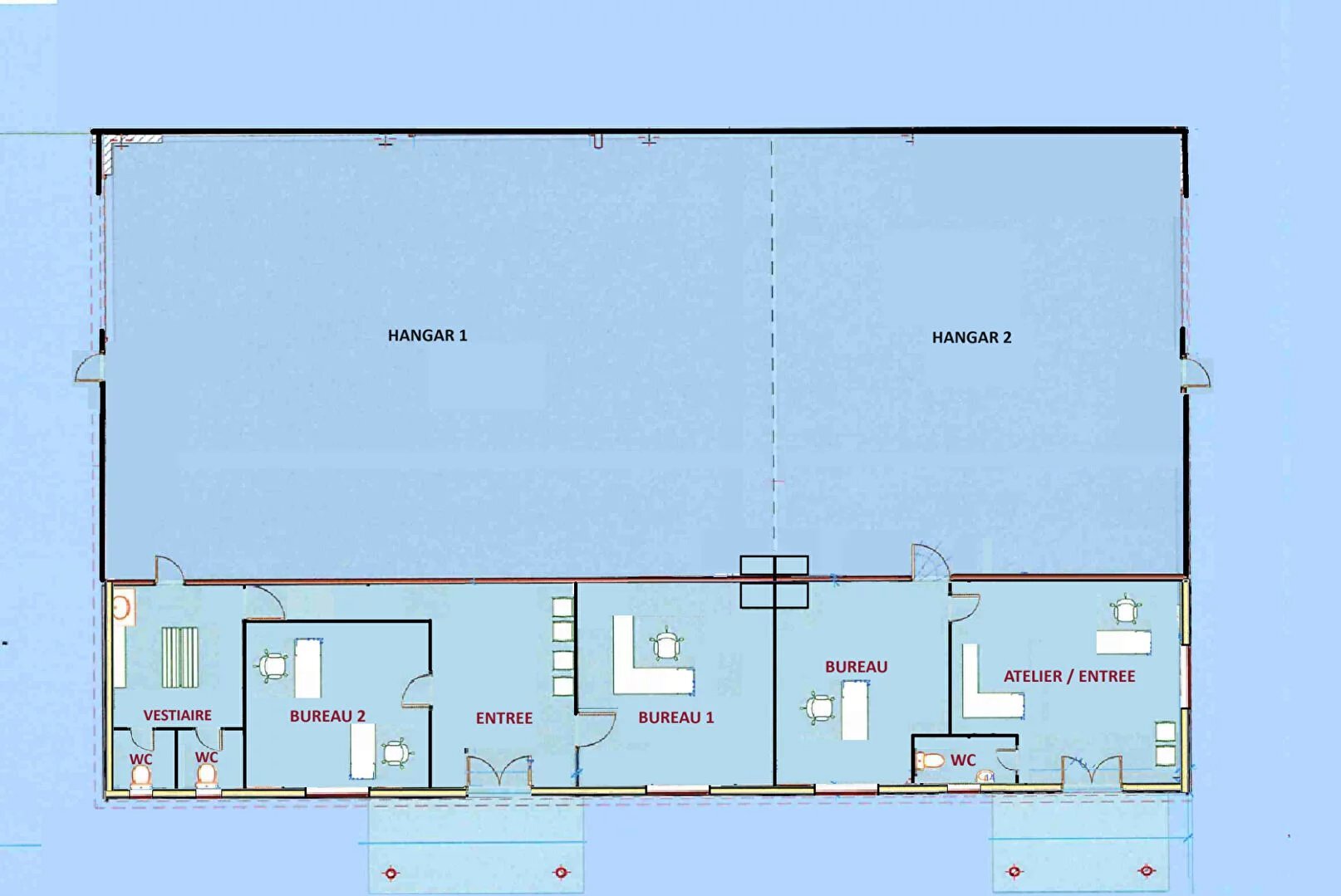
Local commercial Local professionnel NEUF à CANCON, proche N21 avec accès facile pour camions, d'environ 155 m² avec son parc extérieur attenant. L'entrepôt principal de 112 m² a une grande porte et est attenant aux 2 bureaux d'une surface globale de 43 m² (WC pour personnes à mobilité réduite) Possibilité de louer l'ensemble du bâtiment d'une surface totale de 370 m² dont 103 m² de bureaux pour 1700 euros HT hors charges. Les charges comprennent la taxe foncière au prorata de la surface. Les informations sur les risques auxquels ce bien est exposé sont disponibles sur le site Géorisques : www.georisques.gouv.fr Toute activité sera étudiée par le propriétaire Local disponible Retrouvez toutes nos offres sur le site de la Maison de l'Immobilier. Avec la Maison de l'Immobilier, louez en toute sérénité !
Mis à jour le 07/01/2026

Relevés techniques

Diagnostic de performance énergétique :

Production eau chaude

Production chauffage


Les informations sur les risques auxquels ce bien est exposé sont disponibles sur le site Géorisques : www.georisques.gouv.fr