315 000 €
2 128 € / m²

MAINTENON et NOGENT LE ROI : Maison traditionnelle de 5 chambres

MAINTENON et NOGENT LE ROI : Maison traditionnelle de 5 chambres

28130 Maintenon
7 pièces 148 m2 Exclusivité
Référence : 57091
315 000 €
2 128 € / m²

Conditions de vente

315 000 €

Charges immeuble
720 € / an
Taxe foncière
Non renseignée
Honoraires TTC
15 000 € *

* Soit 300 000,00 € + honoraires de 5,00% TTC À la charge de l'acquéreur

Informations

5 chambres
1 salle d'eau
Terrasse
2 Box (garage fermé)s
Construit

Surface du terrain bâti inclus
1225 m²

Description

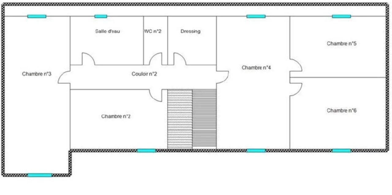
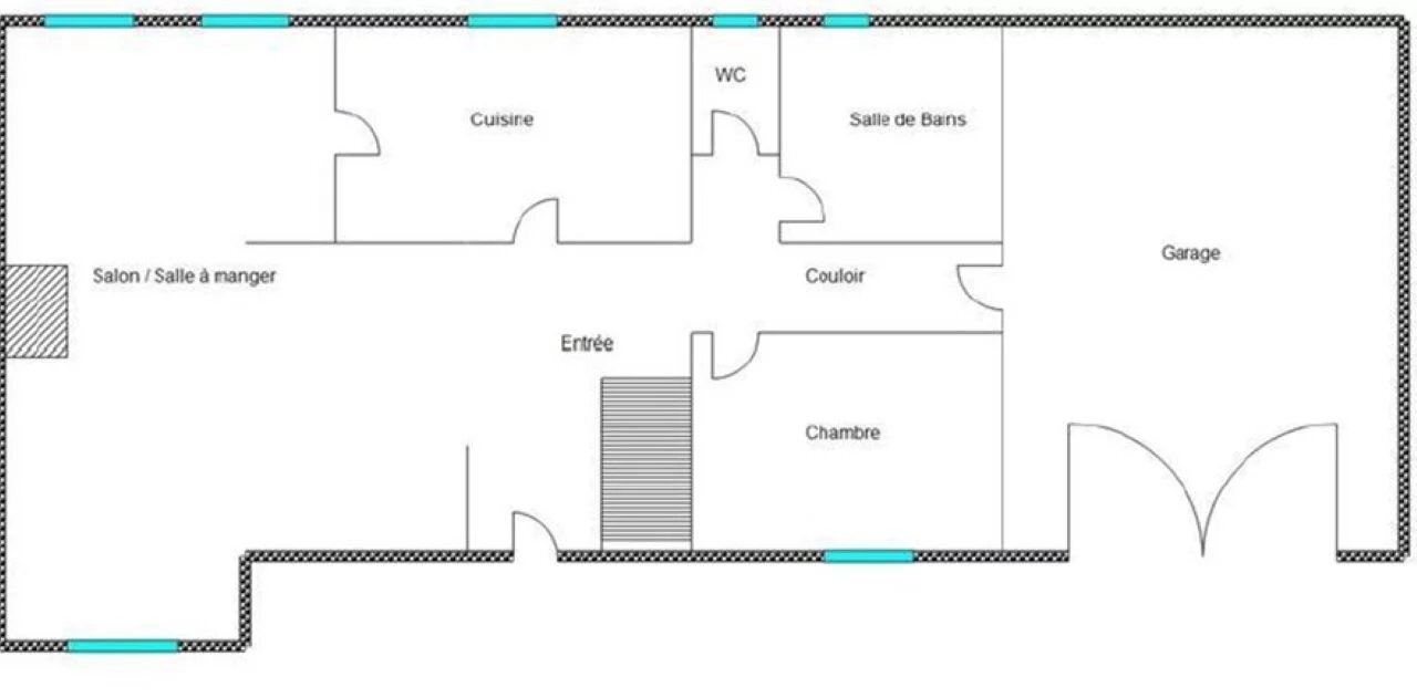
MAINTENON et NOGENT LE ROI : Maison traditionnelle de 5 chambres EXCLUSIVITE LES AGENCES UNIES, l'Agence LA CHAUMIERE vous présente : dans un charmant village avec écoles et garderie situé entre MAINTENON et NOGENT LE ROI : cette maison traditionnelle comprenant : Au rez-de-chaussée : entrée, cuisine aménagée et semi-équipée, salle à manger - salon avec cheminée (insert) donnant sur une terrasse, couloir desservant, wc, salle de bains, chambre, accès garage. A l'étage : Couloir desservant une salle de jeux, quatre chambres dont une avec balcon, dressing, wc, salle d'eau. Garage intégré, chalet de jardin et appentis. Le tout sur un beau terrain clos et arboré de 1220 m² sans vis à vis Réf : M202119 (5.00 % d'honoraires TTC à la charge de l'acquéreur.)
Mis à jour le 07/01/2026

Relevés techniques

Diagnostic de performance énergétique :

Production eau chaude

Production chauffage


Les informations sur les risques auxquels ce bien est exposé sont disponibles sur le site Géorisques : www.georisques.gouv.fr