129 000 €

NOGENT LE ROI - CENTRE

NOGENT LE ROI - CENTRE

28210 Nogent-le-Roi
6 pièces 125 m2
Référence : 57149
129 000 €
1 032 € m²

Conditions de vente

129 000 €

Charges immeuble
Non renseignée
Taxe foncière
Non renseignée
Honoraires TTC
6 002 € *

* Soit 122 998,00 € + honoraires de 4,88% TTC À la charge de l'acquéreur

Informations

4 chambres
1 salle d'eau

Surface du terrain bâti inclus
140 m²

Description

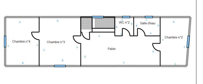
NOGENT LE ROI - CENTRE EXCLUSIVITE LES AGENCES UNIES NOGENT LE ROI - CENTRE. Cette maison ancienne comprend : Une entrée, une cuisine aménagée, un double séjour de 30 m², une belle chambre, une salle de bains, un toilette séparé. A l'étage : une grande pièce palière, 3 grandes chambres , une salle d'eau, un toilette séparé. Un double garage de 55 m² attenant, une cave. (4.88 % d'honoraires TTC à la charge de l'acquéreur.)
Mis à jour le 20/11/2025

Relevés techniques

Diagnostic de performance énergétique :

Production eau chaude

Production chauffage


Les informations sur les risques auxquels ce bien est exposé sont disponibles sur le site Géorisques : www.georisques.gouv.fr