Local professionnel à louer 800,00 € cc

0 pièce 155m2

Référence : 60431

Conditions de location
800,00 € / mois cc

Charges
61,00 €

Dépôt de garantie
700,00 €

Honoraires agence
761,00 € TTC


Disponibilité
Dès maintenant

Durée du bail
1 an

Description

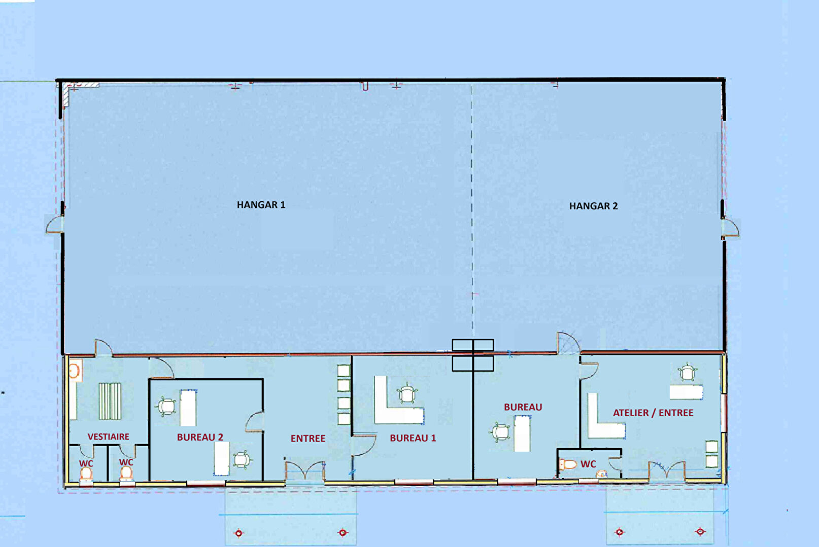
Local professionnel NEUF à CANCON, proche N21 avec accès facile pour camions, d'environ 155 m² avec son parc extérieur attenant. L'entrepôt principal de 112 m² a une grande porte et est attenant aux 2 bureaux d'une surface globale de 43 m² (WC pour personnes à mobilité réduite) Possibilité de louer l'ensemble du bâtiment d'une surface totale de 370 m² dont 103 m² de bureaux pour 1700 euros HT hors charges. Les charges comprennent la taxe foncière au prorata de la surface. Les informations sur les risques auxquels ce bien est exposé sont disponibles sur le site Géorisques : www.georisques.gouv.fr Toute activité sera étudiée par le propriétaire Local disponible Retrouvez toutes nos offres sur le site de la Maison de l'Immobilier. Avec la Maison de l'Immobilier, louez en toute sérénité !

Mis à jour le 05/10/2025

Caractéristiques
  • Étage :
  • Mono-propriété
  • Construit Je connais l'année précise
Relevés techniques
Diagnostic de performance énergétique : En cours

Les informations sur les risques auxquels ce bien est exposé sont disponibles sur le site Géorisques: www.georisques.gouv.fr

Détails des surfaces
Séjour
0 m2

Biens similaires