Local professionnel à louer 800,00 € cc

0 pièce 215m2

Référence : 60432

Conditions de location
800,00 € / mois cc

Charges
85,00 €

Dépôt de garantie
1 200,00 €

Honoraires agence
1 285,00 € TTC


Disponibilité
Dès maintenant

Durée du bail
1 an

Description

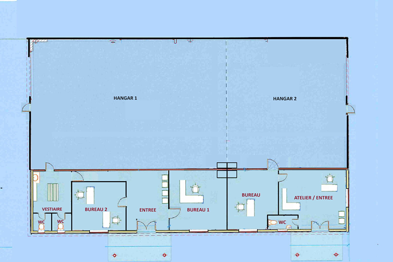
Local professionnel NEUF à CANCON, proche N21 avec accès facile pour camions, d'environ 215 m² avec son parc extérieur attenant. L'entrepôt principal de 155 m² a une grande porte et est attenant aux bureaux d'une surface de 60 m2 (2 bureaux, un hall d'entrée, une salle de repos et deux WC). Possibilité de louer l'ensemble du bâtiment d'une surface totale de 370 m² dont 103 m² de bureaux pour 1800 euros HT hors charges. Loyer HT. Les charges comprennent la taxe foncière au prorata de la surface. Les informations sur les risques auxquels ce bien est exposé sont disponibles sur le site Géorisques : www.georisques.gouv.fr Toute activité sera étudiée par le propriétaire Local disponible Retrouvez toutes nos offres sur le site de la Maison de l'Immobilier. Avec la Maison de l'Immobilier, louez en toute sérénité !

Mis à jour le 05/10/2025

Caractéristiques
  • Étage :
  • Mono-propriété
  • Construit Je connais l'année précise
Relevés techniques
Diagnostic de performance énergétique : En cours

Les informations sur les risques auxquels ce bien est exposé sont disponibles sur le site Géorisques: www.georisques.gouv.fr

Détails des surfaces
Séjour
0 m2