Appartement nu à louer 1 000,67 € cc

Rue Victor Hugo 92130 Issy-les-Moulineaux

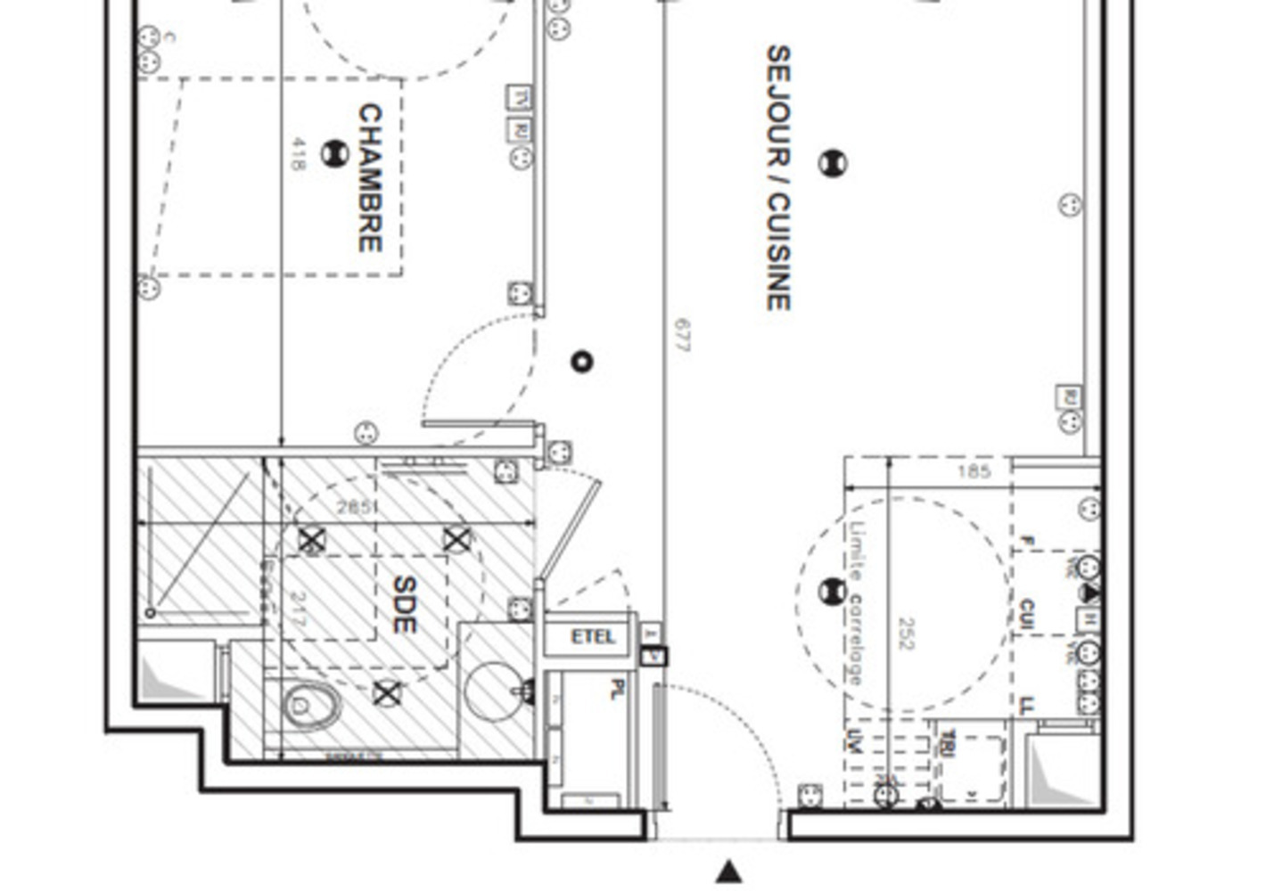
2 pièces 42.81m2

Référence : 6108

Conditions de location
1 000,67 € / mois cc

Charges
107,00 €

Dépôt de garantie
893,67 €

Honoraires agence
641,88 € TTC


Disponibilité
Disponible le 14/11

Durée du bail
3 ans

Colocation
Non

Description

Entre la rue du Général Leclerc et le rond-point Victor Hugo, dans un nouvel écoquartier, ISSY COEUR DE VILLE, exceptionnel avec toutes commodités et transports ( métro ligne 12 se trouve à 250 mètres, le tram T2 et le RER C sont accessibles en 10min), Mairie d'Issy à 194m et porte Porte d'Issy à 839 m.

A proximité immédiate de Paris, Issy-les-Moulineaux se prépare à accueillir 2 stations de la future ligne 15 du Grand Paris Express à horizon 2022.

Sur place, des équipements pour la petite enfance, un cinéma de 7 salles, des restaurants et des commerces et de nombreux espaces verts.


Dans le bâtiment "Cœur d'Albâtre", au 6ème étage, un appartement de type T2 (H6604) comprenant un séjour avec cuisine ouverte, une chambre et une salle d'eau avec WC.


Cadre LOI PINEL

Mis à jour le 15/10/2025

Caractéristiques
  • 1 chambre
  • Étage : 6
  • 1 salle d'eau
  • 1 WC
  • Copropriété
  • Construit Neuf
Transports en commun

mairie d'issy
à 256 m

porte d'issy
à 744 m

issy val de seine
à 970 m

Inclus dans les charges
Chauffage
Eau chaude
Relevés techniques
DPE : 150
GES : 20

Diagnostic réalisé le: Non renseigné


Production eau chaude
Collectif

Production chauffage
Collectif


Les informations sur les risques auxquels ce bien est exposé sont disponibles sur le site Géorisques: www.georisques.gouv.fr

Biens similaires