Local professionnel à louer 6 750,00 € cc

0 pièce 180m2

Référence : 62184

Conditions de location
6 750,00 € / mois cc

Charges
500,00 €

Dépôt de garantie
18 750,00 €

Honoraires agence
27 000,00 € TTC


Disponibilité
Dès maintenant

Durée du bail
1 an

Description

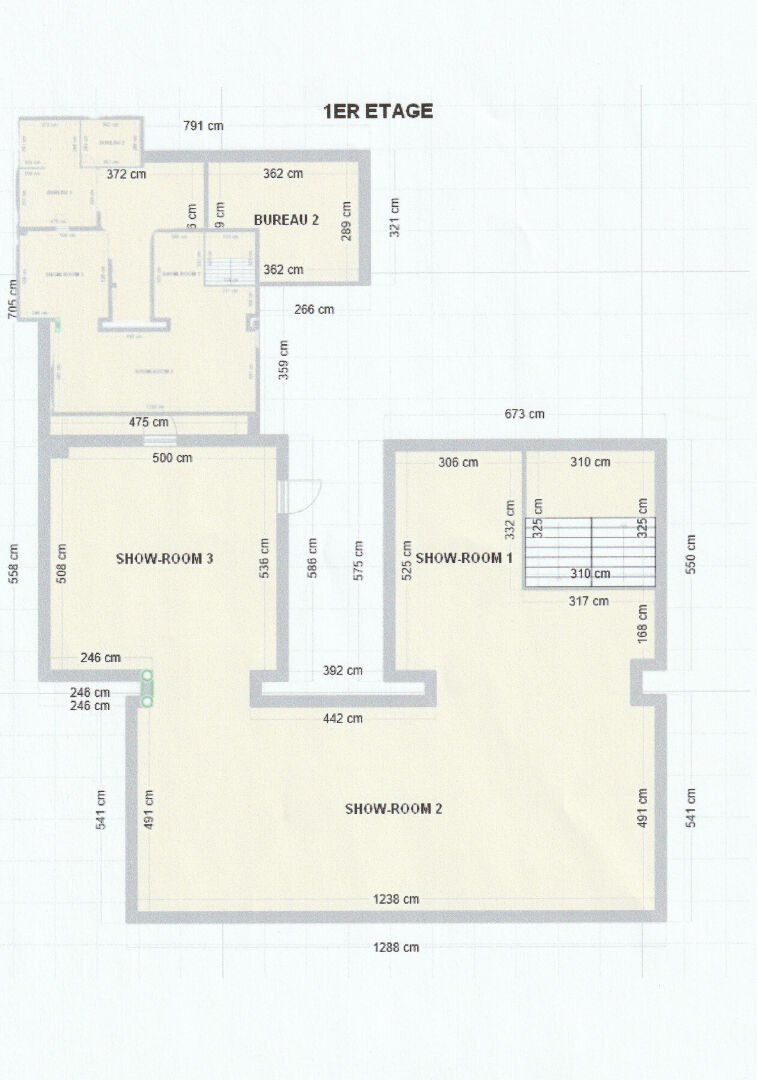
Rue du Temple/, passage ste Avoie en plein coeur du 3eme arrondissement de paris. Dans un environnement haut de gamme et dynamique, Odeon immobilier vous propose à la location une surface commerciale d'environ 180 m2 (mesurage en cours) Situés au premier étage d'un bel immeuble ancien, cet espace offre plusieurs possibilités d'aménagement et peut être séparé en deux lots. L'entrée se fait par le prestigieux passage Ste-Avoie. Lieux pouvant convenir à tous types d'activités, idéal pour y installer des bureaux, un cabinet d'avocats, un cabinet dentaire, un show-room ou encore une salle de sport.. Travaux d'aménagement à prévoir Informations complémentaires et visites: Frédéric: 0624728110 Frederic GODRON (EI) Agent Commercial - Numéro RSAC : - .

Mis à jour le 05/10/2025

Caractéristiques
  • Étage : 1
  • Mono-propriété
  • Construit Je connais l'année précise
Relevés techniques
Diagnostic de performance énergétique : En cours

Les informations sur les risques auxquels ce bien est exposé sont disponibles sur le site Géorisques: www.georisques.gouv.fr

Détails des surfaces
Séjour
0 m2