1 500,00 € cc

Appartement meublé à louer

Appartement meublé à louer

92000 NANTERRE
2 pièces 53 m2 Exclusivité
Référence : 63349
1 500,00 € cc
28,30 € m²

Conditions de location

1 500,00 € / mois cc

Charges
154,00 €
Dépôt de garantie
2 692,00 €
Honoraires agence
954,00 € TTC *
Disponibilité
Dès maintenant
Durée du bail
1 an
Colocation
Non

* Dont 159,00 € TTC pour la réalisation de l'état des lieux

Informations

1 chambre
Étage : 4
1 salle d'eau
1 WC
Bâtiment de : 4 étages
Gardien
1 parking
1 cave
Ascenseur
Balcon
Mono-propriété
Construit 1970

Description

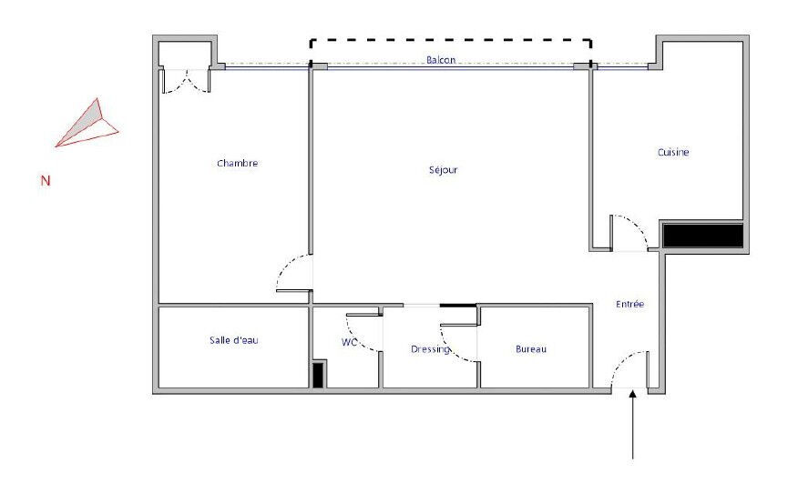
LOCATION MEUBLEE, Nanterre, à 15 minutes du RER, limite, A la limite de Rueil-Malmaison, à deux minutes du marché de Nanterre Ville, dans une copropriété familiale et totalement sécurisée avec gardien, nombreux espaces verts, cet appartement de 53 M2 dispose d'un cadre privilégié. Au 4ème et dernier étage, il se compose, d'une entrée, d'une très belle cuisine récente indépendante aménagée et équipée , d'une pièce de vie donnant sur le balcon exposé plein sud avec une vue dégagée, d'un grand bureau, de placards et de toilettes séparés. Au niveau du coin nuit , une grande chambre avec rangements et une très belle salle de douche avec espace buanderie. Une cave et un parking en sous-sol complète ce bien. Appartement rénové, très lumineux et en parfait état. Vous avez la possibilité de louer un stationnement en sous-sol au prix de 100 euros. Prestations financières : Loyer mensuel : 1 500 Euros charges comprises, Charges récupérables : 154 euros/mois Honoraires charge locataire : 795 euros TTC dont honoraires d'état des lieux : 159 euros TTC Dépôt de garantie : 2 mois : 2 692 euros Notre contact : 01.40.97.07.07 AP/LT
Mis à jour le 19/02/2026

Équipements

Fibre

Relevés techniques

DPE : 203
A
B
C
D
E
F
G
GES : 41
A
B
C
D
E
F
G
Diagnostic réalisé le: 17/06/2025

Montant estimé des dépenses annuelles d'énergie pour un usage standard : entre 830 € et 1160 € par an.

Production eau chaude

Production chauffage
Collectif


Les informations sur les risques auxquels ce bien est exposé sont disponibles sur le site Géorisques : www.georisques.gouv.fr

Détails des surfaces

Espace
Carrez
Au sol
Séjour
0 m²
0 m²

Total
0.00 m²
0.00 m²