840,00 € cc

Appartement nu à louer

Appartement nu à louer

9 Rue Barre 77230 Juilly
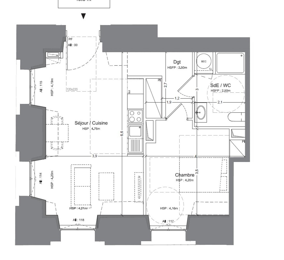
2 pièces 49.3 m2
Référence : 66044
840,00 € cc
17,04 € m²

Conditions de location

840,00 € / mois cc

Charges
70,00 €
Dépôt de garantie
770,00 €
Honoraires agence
547,23 € TTC
Disponibilité
Dès maintenant
Durée du bail
3 ans
Colocation
Non

Informations

1 chambre
Étage : RDC
1 salle d'eau
1 douche
1 WC
2 parkings
Copropriété
Construit Avant 1946

Description

Avec son charme pittoresque et son ambiance sereine, Juilly est l'endroit idéal pour échapper à l'agitation urbaine.
Situé dans un cadre exceptionnel, entre richesses architecturales et parcs remarquables, le plus ancien pensionnat de France, fondé en 1638 sur Ordre de Louis XIII, vient tout juste d'être réhabilité en logements d'exceptions.
A seulement 5' en voiture de la Gare "Dammartin-Juilly-St Mard" (ligne K et TER) reliant Paris Gare du Nord en 30 minutes. A proximité des Aéroports Roissy-Charles de Gaulle et du Bourget.
au RDC, un 2 pièces de 49.3m² comprenant, une pièce principale avec une cuisine aménagée et équipée, une chambre, une salle d'eau avec wc.
2 emplacements de parking extérieur sécurisé.


Merci de déposer votre dossier complet sur votre profil FLATBAY afin qu'il soit au préalable étudié. Si ce dernier répond aux critères : Revenus : 3 x le montant du loyer CC) vous recevrez une invitation de visite. Tout dossier incomplet sera refusé.
Les dossiers garants sont acceptés uniquement pour les statuts étudiants.
Mis à jour le 06/02/2026

Relevés techniques

Diagnostic de performance énergétique : Vierge

Production eau chaude
Individuel Électrique

Production chauffage
Individuel Électrique


Les informations sur les risques auxquels ce bien est exposé sont disponibles sur le site Géorisques : www.georisques.gouv.fr

État et prestations

État général
Excellent