Terrain à vendre 1 040 000 €

Terrain Rue de la Fontaine 92220 Bagneux

lot

Référence : 504

Conditions de vente
1 040 000 € ∞ € / m²

Taxe foncière
Non renseignée


Honoraires à la charge du vendeur

Description

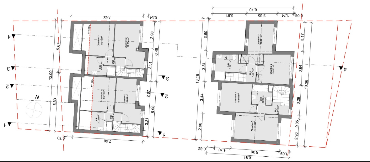
Votre cabinet La Clef à Bagneux vous propose un magnifique terrain de 442 m² en cours de construction avec plusieurs possibilités. Vous pouvez choisir de poursuivre le projet actuel, avec un transfert de permis de construire, en collaboration avec le vendeur ou en rachat total. Il est également envisageable de concevoir un nouveau projet en achetant les deux terrains attenants des voisins, permettant ainsi un projet immobilier de plus grande envergure. Le projet en cours prévoit la construction de 4 maisons d’environ 82 m² chacune. Les travaux déjà réalisés incluent le terrassement, les fondations, les réseaux ainsi que le raccordement aux eaux usées et aux eaux pluviales.
Une opportunité rare à ne pas manquer pour concrétiser vos ambitions immobilières.
N'hesitez pas à nous contacter pour plus d'informations ou pour planifier une viste de ce superbe terrain.

Mis à jour le 15/10/2025

Usage du terrain - Constructible

Caractéristiques
  • Mono-propriété

Surface du terrain bâti inclus
442 m²