Belle demeure avec dépendance COLOMBES - PETITE GARENNE
Référence : 69469
                                                Charges immeuble
                                                
                                                                                                    Non renseignée
                                                                                            
                                            Taxe foncière
                                            
                                                                                            Non renseignée
                                                                                    
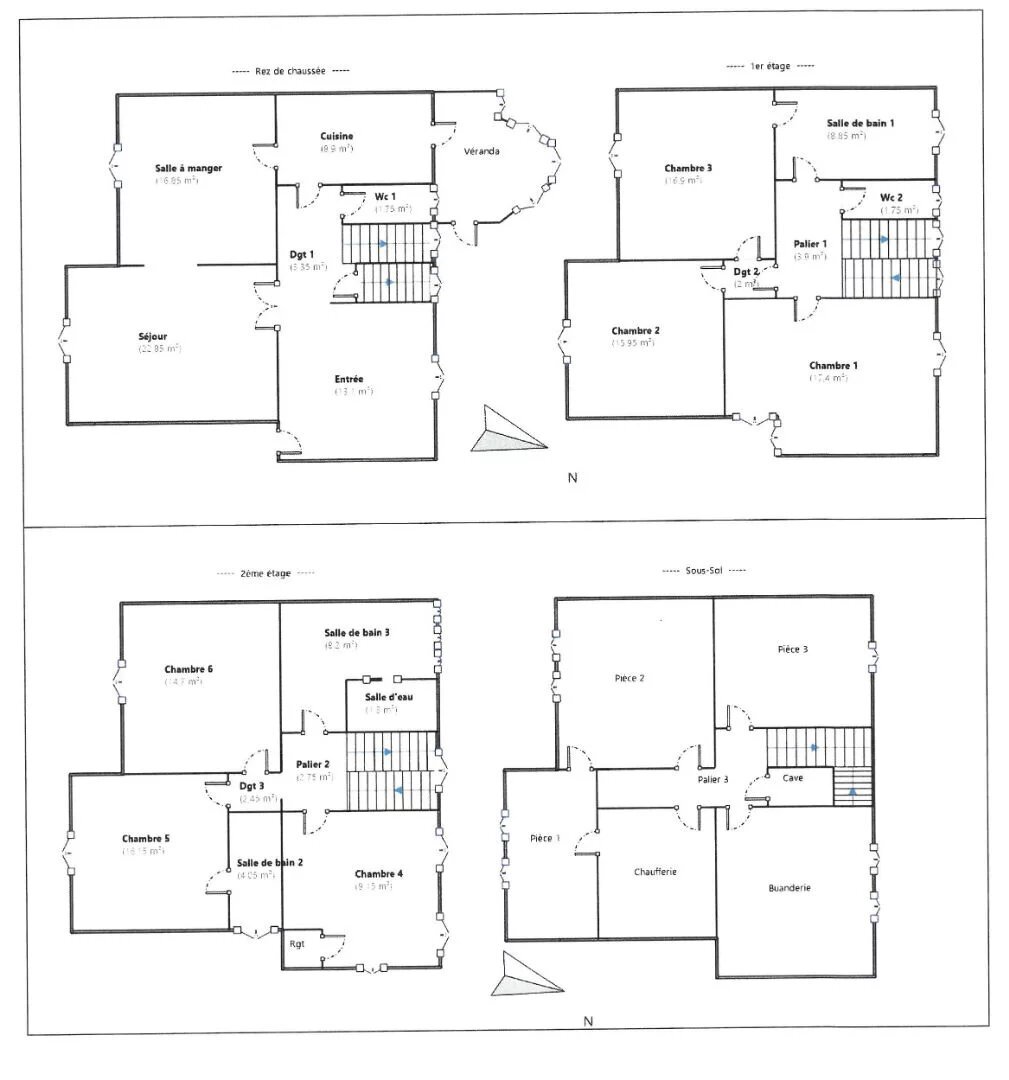
                            Belle demeure avec dépendance COLOMBES - PETITE GARENNE COLOMBES - PETITE GARENNE Sur un Terrain de 707 m² -  Grande maison familiale NON MITOYENNE + dépendance . Dans le secteur recherché de la Petite Garenne, à proximité des transports et des commodités, découvrez cette maison de caractère datant de 1900, construite en meulière et briques, alliant authenticité, volumes et potentiel. La maison principale 9 pièces de 192 m² : Cette maison vous séduira par ses belles hauteurs sous plafond, ses cheminées, et ses prestations d'époque préservées. Rez-de-chaussée : entrée accueillante, vaste séjour double de 39 m², cuisine , véranda lumineuse de 12 m², WC. 1er étage : 3 grandes chambres, salle de bains avec WC, WC indépendant. 2e étage : 3 chambres spacieuses, salle de bains avec WC, salle d'eau. Sous-sol total. Extérieurs : Beaux jardins à l'avant et à l'arrière, 3 places de stationnement sur la parcelle, calme et verdure assurés. Dépendance indépendante (idéal profession libérale, locatif ou habitation) : Accessible par le jardin ou directement depuis la rue, cette seconde maison comprend : Un séjour, une cuisine, une chambre et une salle de bains avec WC. Situation idéale : A proximité immédiate de la gare de La Garenne Colombes, du tramway T2 et de la gare Les Vallées, vous rejoignez Paris rapidement tout en profitant d'un environnement résidentiel recherché. Une opportunité rare sur le secteur pour une grande famille, une profession libérale ou un projet avec rentabilité locative.
                            
                            
                            
                                Mis à jour le 30/10/2025
                            
                        
                                    Surface du terrain bâti inclus
                                    
                                    707 m²
                                
Les informations sur les risques auxquels ce bien est exposé sont disponibles sur le site Géorisques: www.georisques.gouv.fr