749,00 € cc

Studio nu à louer

Studio nu à louer

78210 SAINT CYR L ECOLE
1 pièce 33.32 m2 Exclusivité
Référence : 69757
749,00 € cc
22,48 € m²

Conditions de location

749,00 € / mois cc

Charges
100,00 €
Dépôt de garantie
649,00 €
Honoraires agence
534,00 € TTC *
Disponibilité
Dès maintenant
Durée du bail
1 an

* Dont 100,00 € TTC pour la réalisation de l'état des lieux

Informations

Étage : 2
1 salle d'eau
1 WC
Bâtiment de : 4 étages
1 parking
Ascenseur
Mono-propriété
Construit 2025

Description

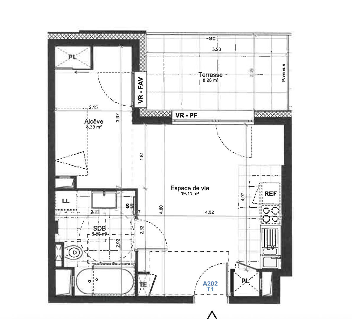
A louer - Grand studio avec alcôve et terrasse - Saint-Cyr-l'École (ZAC Charles Renard) Dans une résidence neuve et sécurisée, récemment livrée au coeur de la ZAC Charles Renard, découvrez ce spacieux studio de 33 m², situé au 2ème étage avec ascenseur. Il se compose de : Une pièce de vie lumineuse de près de 19 m², avec accès direct à la terrasse, Une alcôve indépendante de plus de 8 m² (idéal pour coin nuit ou bureau), Une cuisine aménagée (en cours de pose), Une salle de bains spacieuse avec WC, Un grand balcon de 8,26 m², sans vis-à-vis, parfait pour profiter des beaux jours. En complément : Une place de stationnement privative en sous-sol est possible en supplément. Résidence neuve avec prestations modernes, Assurance loyers impayés Emplacement recherché, à proximité des commerces, bus et 15 mn à pieds RER et Tram Disponible immédiatement - location PINEL. Une visite ? contactez Homae immobilier 0756982098 Copropriété de 350 lots (Pas de procédure en cours). Charges annuelles : 1200 euros.
Mis à jour le 26/02/2026

Relevés techniques

Diagnostic de performance énergétique : En cours

Production eau chaude

Production chauffage
Collectif


Les informations sur les risques auxquels ce bien est exposé sont disponibles sur le site Géorisques : www.georisques.gouv.fr

Détails des surfaces

Espace
Carrez
Au sol
Séjour
19.11 m²
19.11 m²

Total
19.11 m²
19.11 m²