246 200 €

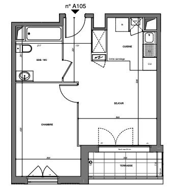
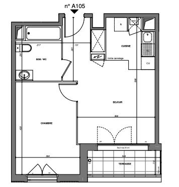
Appartement T2 avec terrasse

Appartement T2 avec terrasse

94500 Champigny-sur-Marne
2 pièces 40.95 m2
Référence : 71620
246 200 €
6 012 € m²

Conditions de vente

246 200 €

Charges immeuble
Non renseignée
Taxe foncière
Non renseignée

Informations

1 chambre
Étage : 1
1 salle d'eau
1 WC
Bâtiment de : 5 étages
Terrasse
Ascenseur
Vue exceptionelle

Description

Appartement T2 avec terrasse A seulement 12km à l'est de la capitale, Champigny-sur- Marne, dans un cadre verdoyant. Cet appartement se compose : d'un séjour/cuisine de plus de 22m2 d'une chambre de plus de 12m2 d'une grande salle de bain de plus de 5m2 et d'une terrasse donnant directement sur le séjour. Pour plus d'information, merci de nous contacter directement.
Mis à jour le 20/11/2025

Relevés techniques

Orientation
Sud

Diagnostic de performance énergétique :

Production eau chaude

Production chauffage


Les informations sur les risques auxquels ce bien est exposé sont disponibles sur le site Géorisques : www.georisques.gouv.fr