1 215,00 € cc

Appartement nu à louer

Appartement nu à louer

92250 LA GARENNE COLOMBES
2 pièces 49 m2 Exclusivité
Référence : 71825
1 215,00 € cc
24,80 € m²

Conditions de location

1 215,00 € / mois cc

Charges
146,18 €
Dépôt de garantie
1 068,82 €
Honoraires agence
820,98 € TTC *
Disponibilité
Dès maintenant
Durée du bail
1 an
Colocation
Non

* Dont 136,83 € TTC pour la réalisation de l'état des lieux

Informations

1 chambre
Étage : 2
1 salle d'eau
1 WC
Bâtiment de : 4 étages
Gardien
1 parking
1 cave
Ascenseur
Copropriété
Construit 1996

Description

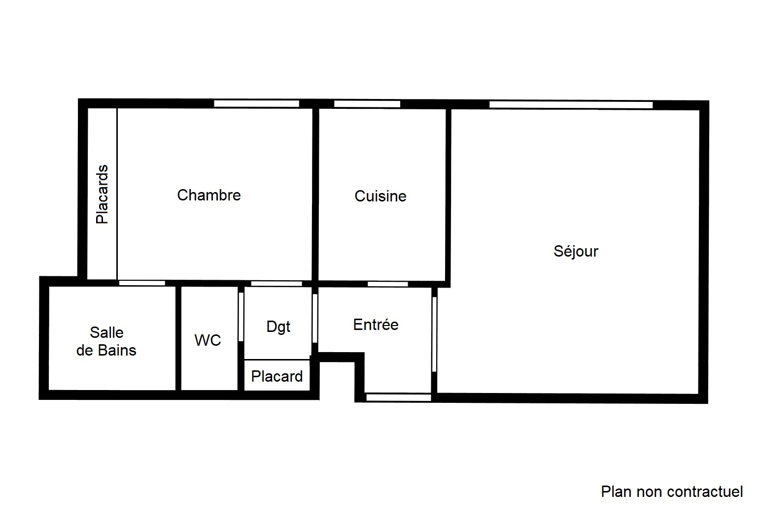
La Garenne centre, au deuxième étage d'une résidence de standing récente parfaitement entretenue (avec gardienne), SPACIEUX APPARTEMENT 2 PIECES de 49 m2 exposé ouest, comprenant : entrée, vaste séjour très lumineux grâce à ses grandes baies vitrées, cuisine aménagée avec emplacement pour lave-linge et lave-vaisselle, dégagement avec placard, WC indépendant avec lave-mains, chambre avec grand linéaire de placards, salle de bains. Très calme, ce bien donne exclusivement en coeur d'îlot, sur les jardins de la copropriété. Chauffage et eau chaude : individuel électrique. Très bon DPE (C). Une CAVE et un PARKING en sous-sol. Rue du Château, une adresse centrale agréable à vivre : à 3 minutes des commerces et restaurants du Rond-Point du Souvenir Français et de la rue Voltaire ; Transports : 3 min bus 163 (ligne Neuilly bd Bineau, porte de Champerret), 10 min gare sncf Courbevoie (ligne St Lazare) et tram T2 (ligne la Défense). PAS DE COLOCATION.
Mis à jour le 19/11/2025

Relevés techniques

Orientation
Ouest

DPE : 175
A
B
C
D
E
F
G
GES : 5
A
B
C
D
E
F
G
Diagnostic réalisé le: 06/07/2022

Montant estimé des dépenses annuelles d'énergie pour un usage standard : entre 560 € et 820 € par an.

Production eau chaude

Production chauffage
Individuel Électrique


Les informations sur les risques auxquels ce bien est exposé sont disponibles sur le site Géorisques : www.georisques.gouv.fr

Détails des surfaces

Espace
Carrez
Au sol
Séjour
0 m²
0 m²

Total
0.00 m²
0.00 m²