Appartement nu à louer 1 169,98 € cc

Avenue du Maréchal de Lattre de Tassigny 93140 Bondy

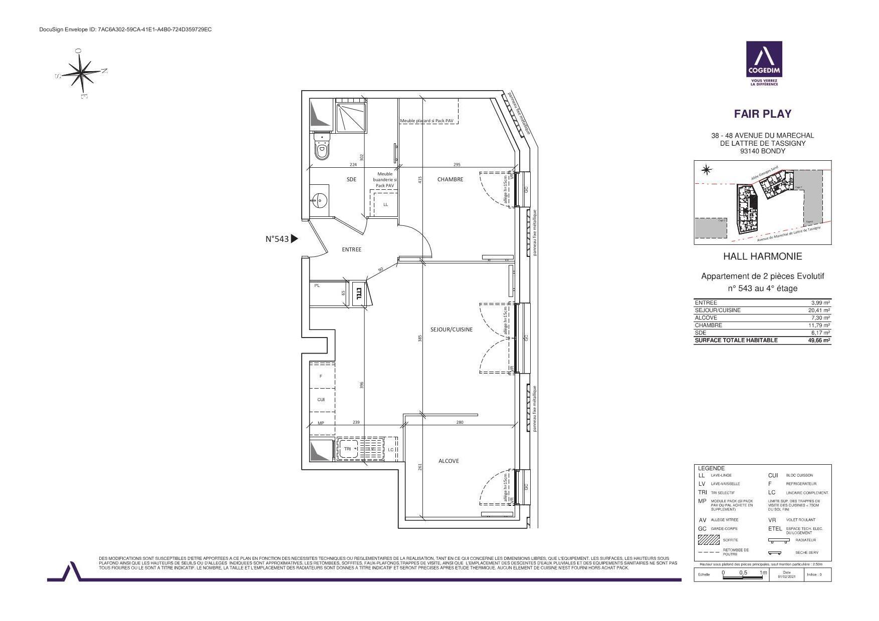
2 pièces 49.66m2

Référence : 71838

Conditions de location
1 169,98 € / mois cc

Charges
148,98 €

Dépôt de garantie
1 021,00 €

Honoraires agence
645,57 € TTC


Disponibilité
Dès maintenant

Durée du bail
3 ans

Colocation
Non

Description

Av, du Maréchal Lattre de Tassigny, dans une résidence neuve, à proximités de toutes commodités.
Un appartement de type T2 évolutif (543) d'une surface de 49,66 m2 situé au 4éme étage avec ascenseur.
Il est composé: d'une entrée, d'un séjour ouvert sur une cuisine, d'une chambre, d'une alcôve d'une surface de 7,30m2, d'une salle d'eau avec WC.

Un emplacement parking.

Appartement neuf.

Disponible à partir du 30 septembre 2025.

Mis à jour le 06/10/2025

Caractéristiques
  • 1 chambre
  • Étage : 4
  • 1 salle d'eau
  • 1 WC
  • 1 parking
  • Ascenseur
  • Local à vélo
  • Copropriété
  • Construit Neuf
Inclus dans les charges
Chauffage
Eau froide
Eau chaude
Relevés techniques

Traversant
Non

Vitrage
Double


Diagnostic de performance énergétique : En cours

Production eau chaude
Collectif

Production chauffage
Collectif


Les informations sur les risques auxquels ce bien est exposé sont disponibles sur le site Géorisques: www.georisques.gouv.fr

Biens similaires