Appartement nu à louer 825,43 € cc

Appartement Avenue du Maréchal de Lattre de Tassigny 93140 Bondy

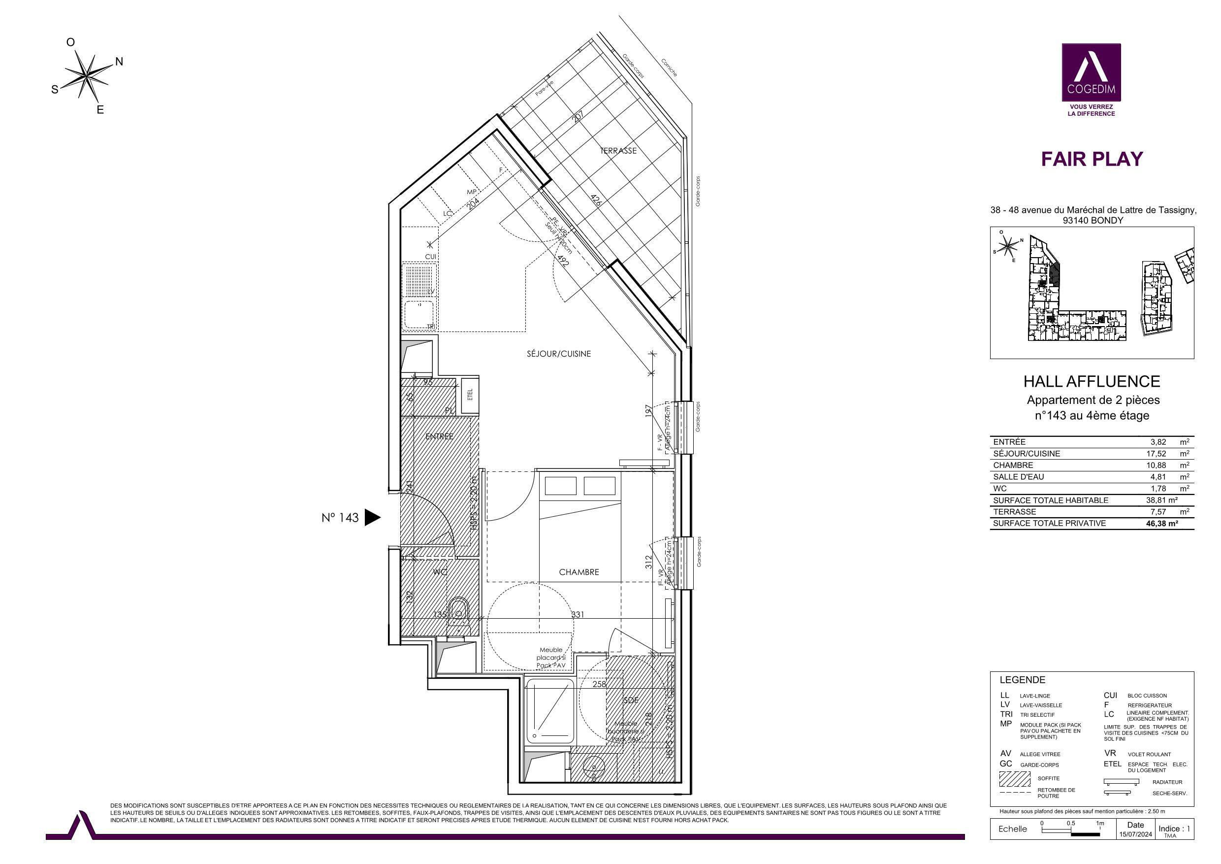
2 pièces 38.81m2

Référence : 71842

Conditions de location
825,43 € / mois cc

Charges
116,43 €

Dépôt de garantie
708,98 €

Honoraires agence
504,53 € TTC


Disponibilité
Dès maintenant

Durée du bail
3 ans

Colocation
Non

Description

Av, du Maréchal Lattre de Tassigny, dans une résidence neuve, à proximités de toutes commodités.
Un appartement de type T2 (143) d'une surface de 38,381m2 situé au 4éme étage avec ascenseur.
Il est composé: d'une entrée, d'un séjour ouvert sur une cuisine aménagée et équipée (plaques de cuisson et hotte), d'une chambre, d'une salle d'eau et d'un WC.

Une terrasse d'une surface de 7,57m2.

Appartement neuf.

Disponible à partir du 30 septembre 2025.

Cadre Loi Pinel.

Mis à jour le 06/10/2025

Caractéristiques
  • 1 chambre
  • Étage : 4
  • 1 salle d'eau
  • 1 WC
  • Ascenseur
  • Local à vélo
  • Copropriété
  • Construit Neuf
Équipements
Plaques de cuisson
Hotte Aspirante
Inclus dans les charges
Chauffage
Eau froide
Eau chaude
Relevés techniques

Traversant
Non

Vitrage
Double


Diagnostic de performance énergétique : En cours

Production eau chaude
Collectif

Production chauffage
Collectif


Les informations sur les risques auxquels ce bien est exposé sont disponibles sur le site Géorisques: www.georisques.gouv.fr

Biens similaires