Appartement nu à louer 600,00 € cc

Boulevard Deodat de Sévérac 31770 Colomiers

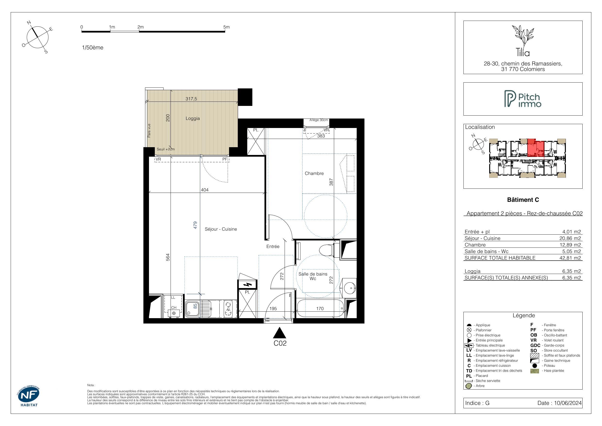
2 pièces 42.81m2

Référence : 72031

Conditions de location
600,00 € / mois cc

Charges
50,00 €

Dépôt de garantie
550,00 €

Honoraires agence
556,53 € TTC *


Disponibilité
Dès maintenant

Durée du bail
3 ans

Colocation
Non


* Dont 128,43 € TTC pour la réalisation de l'état des lieux
Description

Au 9 Boulevard Déodat de Séverac à Colomiers, T2 neuf à louer en rez-de-chaussée.
Il se compose d'une entrée avec placard, d'une pièce de vie avec cuisine ouverte, salle de bains avec baignoire et wc, chambre avec placard, une terrasse.
Nous vous précisons que les placards sont à amenager.
La place de parking est en extérieur.
Le chauffage et l'eau sont produits par une chaudière au gaz individuel.
Disponible de suite.
Votre dossier complet est à déposer avant toute visite.

Mis à jour le 06/10/2025

Caractéristiques
  • 1 chambre
  • Étage : RDC
  • 1 salle d'eau
  • -1 douche
  • 1 baignoire
  • 1 WC
  • Bâtiment de : 1 étage
  • Terrasse
  • 1 parking
  • Local à vélo
  • Copropriété
  • Construit Neuf

Etat général
Excellent

Équipements
Plaques de cuisson
Réfrigérateur
Fibre
Hotte Aspirante
Thermostat
Inclus dans les charges
Entretien bâtiment
Eau froide
Relevés techniques
DPE : 53
GES : 11

Diagnostic réalisé le: Non renseigné


Production eau chaude
Individuel Gaz

Production chauffage
Individuel Gaz


Les informations sur les risques auxquels ce bien est exposé sont disponibles sur le site Géorisques: www.georisques.gouv.fr

Biens similaires