PLACE DES VOSGES - F1B à vendre 73 000 €

Boulevard du Recteur Senn 54000 Nancy

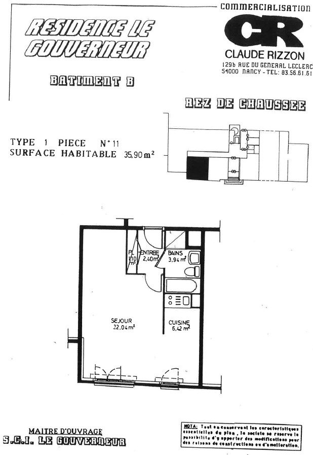
1 pièce 35.9m2 Exclusivité

Référence : #1239

Conditions de vente
73 000 € 2 033 € / m²

Charges immeuble
624 € / an

Taxe foncière
Non renseignée


Honoraires à la charge du vendeur

Description

Découvrez sans tarder ce charmant F1B de 36 m2, disponible immédiatement, niché dans une résidence entretenue proche du centre ville de Nancy, de l'hôpital central, des petits commerces, de la ligne 2 et des écoles telles que IFSI, sage-femmes, sciences-po, etc..
Vous apprécierez son grand placard dans l'entrée, sa pièce de vie spacieuse, sa kitchenette équipée fonctionnelle, son coin nuit ainsi qu’une salle de bains avec W.C.
Idéal pour les investisseurs, cet appartement représente une opportunité à ne pas manquer.
Contactez-nous dès maintenant pour organiser votre visite selon vos disponibilités !

Mis à jour le 24/10/2025

Caractéristiques
  • 1 chambre
  • Étage : RDC
  • 1 salle d'eau
  • 1 baignoire
  • 1 WC
  • Bâtiment de : 4 étages
  • Ascenseur
  • Copropriété
  • Construit 1989
État et prestations

État général
Travaux à prévoir


Relevés techniques

Traversant
Non

Vitrage
Double


DPE : 208
GES : 6

Diagnostic réalisé le: 28/04/25


Estimation facture d'énergie
640 à 900 € / an


Production eau chaude
Individuel Électrique

Production chauffage
Individuel Électrique


Les informations sur les risques auxquels ce bien est exposé sont disponibles sur le site Géorisques: www.georisques.gouv.fr

Bien similaire