Vente local commercial 75017 1 900 000 €

Vente local commercial 75017

9 pièces 201.07m2

Référence : 74300

Conditions de vente
1 900 000 € 9 449 € / m²

Charges immeuble
6 024 € / an

Taxe foncière
Non renseignée

Description

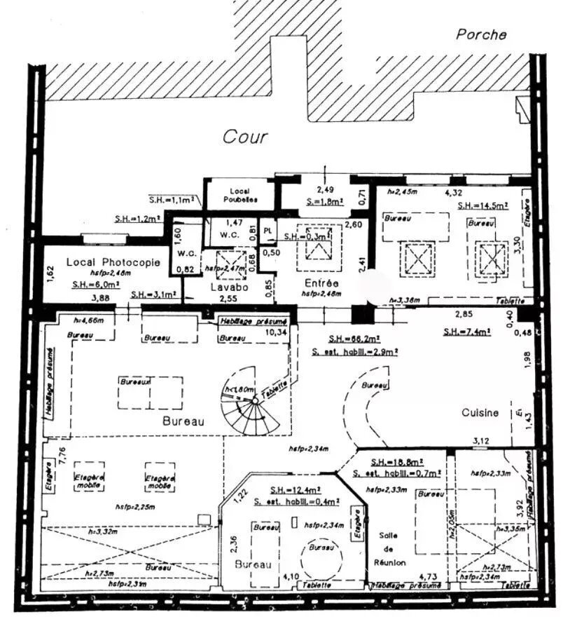
Vente local commercial 75017 Entre la porte de Champerret et le blvd Pereire. Local commercial atypique dans un bâtiment indépendant sur cour, accessible par le hall d'un immeuble pierre de taille. Entrée, accueil, 6 bureaux indépendants et un open space avec mezzanine. En rez-de-chaussée, accueil ouvrant sur un beau volume en open-space offrant 6 à 8 postes de travail, un bureau simple, un bureau double, une salle de conférence avec petite cuisine attenante ouverte, un local informatique, un local photocopieur et deux WC indépendants. En niveau mezzanine, un open-space avec 2 ou 3 postes de travail, un très grand bureau de direction avec petite salle de réunion attenante et communiquant et un bureau. Climatisation partielle, chauffage individuel au fioul. Câblage informatique. Une cave complémentaire est vendue avec le bien. L'objet de la vente porte en préférence sur le rachat de part de SCI. Prix hors honoraires 1 900 000 euros, prix honoraires inclus 1 976 000 euros

Mis à jour le 06/10/2025

Caractéristiques
  • Étage : RDC
  • 2 WCs
  • Ascenseur
  • Copropriété
  • Construit
Équipements
Fibre
Climatisation
Relevés techniques
Diagnostic de performance énergétique :

Les informations sur les risques auxquels ce bien est exposé sont disponibles sur le site Géorisques: www.georisques.gouv.fr