3 pièces avec grand séjour 580 000 €

3 pièces avec grand séjour

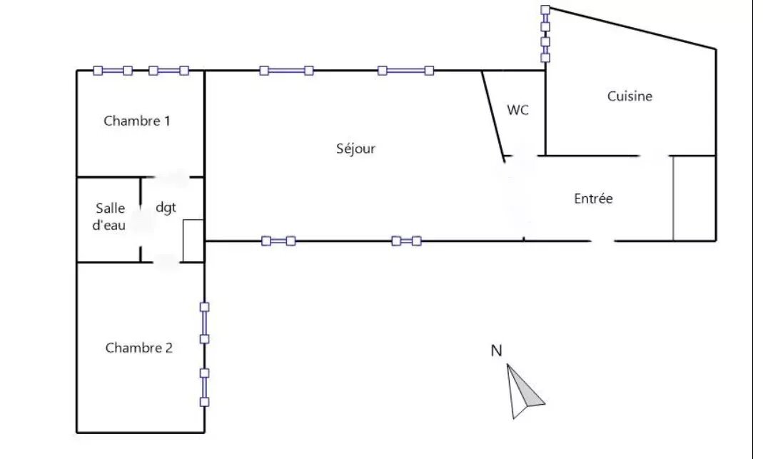
3 pièces 67.32m2

Référence : 74910

Conditions de vente
580 000 € 8 616 € / m²

Charges immeuble
3 960 € / an

Taxe foncière
Non renseignée

Honoraires TTC
13 981 € *


* Soit 566 019,00 € + honoraires de 2,47% TTC À la charge de l'acquéreur

Description

3 pièces avec grand séjour rue Dutot - Au 4e étage d'un immeuble 1930 gardienné avec ascenseur, appartement agréable de 67.32 m² composé d'un grand séjour de 30 m² traversant, une cuisine équipée, deux chambres, des rangements et une salle de bains. Ce bien calme au plan optimisé et à l'isolation de qualité est complété par une cave. compteur d'eau et de chauffage individuels.

Mis à jour le 05/10/2025

Caractéristiques
  • 2 chambres
  • Étage : 4
  • 1 douche
  • 1 WC
  • Bâtiment de : 7 étages
  • Gardien
  • 1 cave
  • Ascenseur
  • Construit
Équipements
Fibre
Relevés techniques
Diagnostic de performance énergétique :

Les informations sur les risques auxquels ce bien est exposé sont disponibles sur le site Géorisques: www.georisques.gouv.fr

Biens similaires