T2 résidence récente chemin du pont des iles 582,00 € cc

Chemin du Pont des Îles 30000 Nîmes

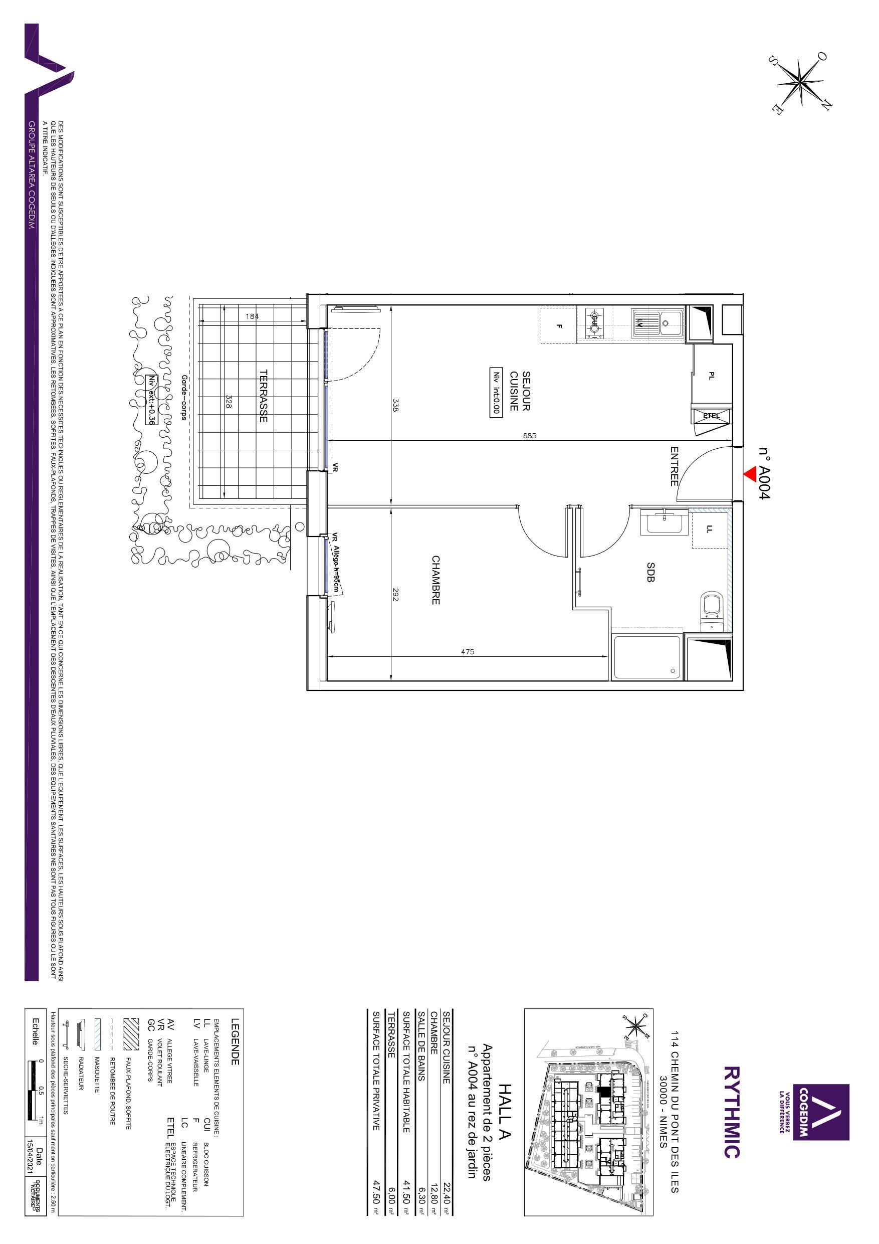
2 pièces 41.5m2

Référence : 7519

Conditions de location
582,00 € / mois cc

Charges
50,00 €

Dépôt de garantie
532,00 €

Honoraires agence
539,50 € TTC *


Disponibilité
Disponible le 16/10

Durée du bail
3 ans

Colocation
Non


* Dont 124,50 € TTC pour la réalisation de l'état des lieux
Description

T2 achevé en 2023 dans une résidence sécurisée
situé en rez-de-chaussée-sur jardin arboré
secteur calme mais proche des grands axes et des commerces
Loué avec un parking extérieur
cuisine aménagée
Location soumise aux règles du dispositif Pinel, fournir impérativement vos 2 derniers avis d'imposition
Déposez dès aujourd'hui votre candidature sur notre plateforme sécurisée flat bay, vous serez contacté pour une visite (attention seules les candidatures complètes seront traitées)

Mis à jour le 06/10/2025

Caractéristiques
  • 1 chambre
  • Étage : RDC
  • 1 salle d'eau
  • 1 douche
  • 1 WC
  • Bâtiment de : 3 étages
  • Terrasse
  • 1 parking
  • Ascenseur
  • Local à vélo
  • Copropriété
  • Adapté PMR
  • Construit Après 1990

Etat général
Bon

Équipements
Plaques de cuisson
Fibre
Hotte Aspirante
Inclus dans les charges
Entretien bâtiment
Eau froide
Eau chaude
Taxe ordures ménagères
Relevés techniques

Orientation
Sud-Est

Traversant
Non

Vitrage
Double


DPE : 55
GES : 7

Diagnostic réalisé le: 03/04/23


Production eau chaude
Collectif

Production chauffage
Individuel Électrique


Les informations sur les risques auxquels ce bien est exposé sont disponibles sur le site Géorisques: www.georisques.gouv.fr

Détails des surfaces
Terrasse
6 m2

Biens similaires