240 900 €

Appartement T2 avec jardin au Sables d'Olonne.

Appartement T2 avec jardin au Sables d'Olonne.

85100 Les Sables-d'Olonne
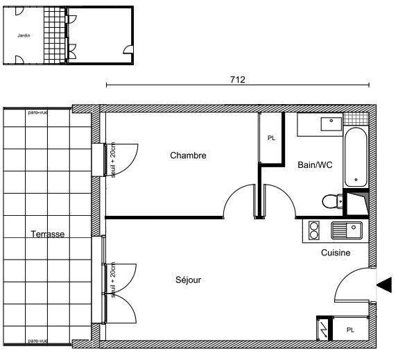
2 pièces 42.69 m2
Référence : 75687
240 900 €
5 643 € m²

Conditions de vente

240 900 €

Charges immeuble
Non renseignée
Taxe foncière
Non renseignée

Informations

1 chambre
Étage : RDC
1 douche
1 WC
Bâtiment de : 4 étages
Terrasse
Ascenseur
Vue exceptionelle

Surface du terrain bâti inclus
25 m²

Description

Appartement T2 avec jardin au Sables d'Olonne. coeur d'un quartier calme et résidentiel des Sables d'Olonne permettant de profiter d'un cadre verdoyant et apaisant tout en étant à proximité à la fois des grands espaces littoraux et des équipements urbains. Idéalement située, la résidence est à proximité de toutes les commodités : commerces de quartier, écoles, crèches, et équipements publics, et bien desservie par le réseau de transports. Cet appartement se compose : - d'un séjour/cuisine de plus de 23m2, - d'une chambre - d'une grande salle de bains de plus de 6m2, - et d'un espace extérieur de avec terrasse et jardin Le prix affiché est en LLI (voir si éligibilité). Pour plus d'information, merci de nous contacter directement.
Mis à jour le 20/11/2025

Relevés techniques

Diagnostic de performance énergétique :

Production eau chaude

Production chauffage


Les informations sur les risques auxquels ce bien est exposé sont disponibles sur le site Géorisques : www.georisques.gouv.fr