LA GARENNE-COLOMBES - CHARLEBOURG 465 000 €

LA GARENNE-COLOMBES - CHARLEBOURG

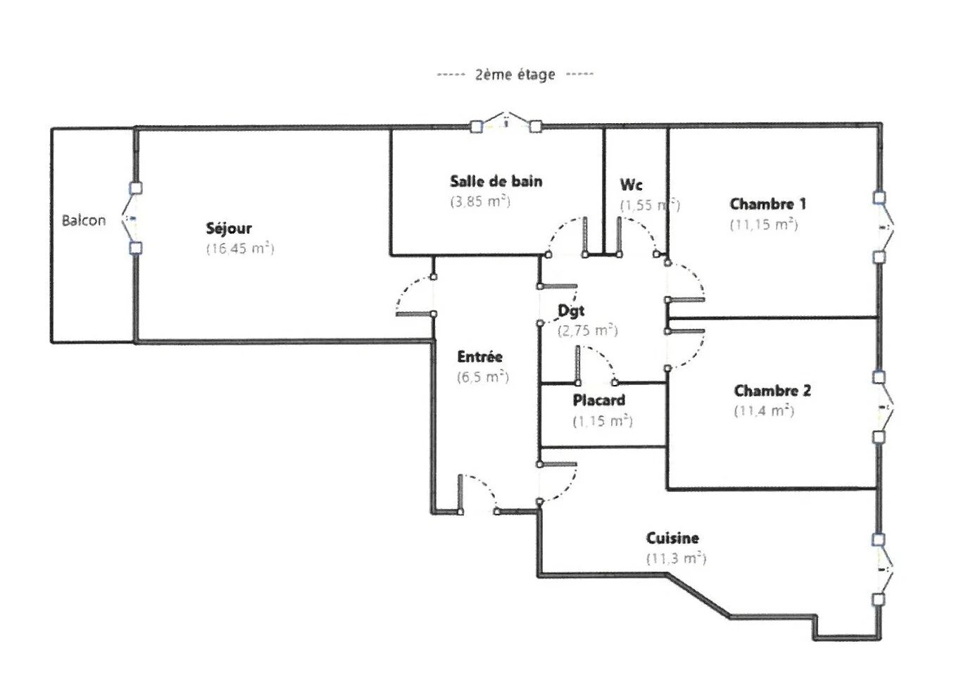
3 pièces 66.1m2 Exclusivité

Référence : 76950

Conditions de vente
465 000 € 7 035 € / m²

Charges immeuble
Non renseignée

Taxe foncière
Non renseignée

Description

LA GARENNE-COLOMBES - CHARLEBOURG 3 PIÈCES DE 66.10 M² en bon état avec BALCON situé au deuxième étage avec ascenseur d'une résidence 1970 pour lequel les travaux de réfection des parties communes ont été votés et payés. Il comprend : Une entrée avec placards, un séjour ouvrant sur un balcon de 4.80 m² vue dégagée, une cuisine indépendante avec espace cellier, une salle de bain, wc séparé, dégagement avec placard, un dressing, 2 belles chambres donnant sur l'arrière de la résidence. Une cave en sous-sol. BOX inclu. TRAVERSANT - CALME - VUE DEGAGEE. A - 10 min de la place du Marché et 4 MIN DE LA GARE DE LA GARENNE-COLOMBES transilien ligne L et 3 MIN du T2 arrêt Charlebourg. Sectorisation : école élémentaire Ernest Renan et collège les Champs Philippe. Copropriété de 61 lots - dont 25 lots habitation. (Pas de procédure en cours). Charges annuelles : 3498 euros.

Mis à jour le 19/10/2025

Caractéristiques
  • Étage : 2
  • 1 salle d'eau
  • 1 WC
  • Bâtiment de : 6 étages
  • 1 Box (garage fermé)
  • Construit
Relevés techniques
Diagnostic de performance énergétique :

Les informations sur les risques auxquels ce bien est exposé sont disponibles sur le site Géorisques: www.georisques.gouv.fr

Biens similaires