Appartement Clichy La Garenne 2 pièces 20.01 m2 1 038,06 € cc

Appartement Clichy La Garenne 2 pièces 20.01 m2

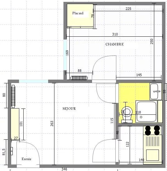
2 pièces 20.01m2

Référence : 77145

Conditions de location
1 038,06 € / mois cc

Charges
360,18 €

Dépôt de garantie
647,88 €

Honoraires agence
Non disponible


Disponibilité
Dès maintenant

Durée du bail


* Dont 60,03 € TTC pour la réalisation de l'état des lieux
Description

Appartement Clichy La Garenne 2 pièces 20.01 m2 CLICHY - Cité nouvelle Au 2ème étage d'un immeuble ancien, 2 pièces très bien agencé et entièrement rénové comprenant séjour, cuisine, chambre salle d'eau. Chauffage et eau chaude en individuel électrique. Cave en sous sol Disponible le 14/11/2025. Proximité des commerces et métro ligne 13 (mairie de clichy) Frais d'actes de location 300.15 eurosTTC (si bail loi 89)

Mis à jour le 19/10/2025

Caractéristiques
  • Étage : 2
  • 1 douche
  • 1 WC
  • Construit
Relevés techniques
Diagnostic de performance énergétique :

Les informations sur les risques auxquels ce bien est exposé sont disponibles sur le site Géorisques: www.georisques.gouv.fr

Biens similaires