119 000 €

Idéal pour investissement : Studio avec balcon

Idéal pour investissement : Studio avec balcon

09110 Ax-les-Thermes
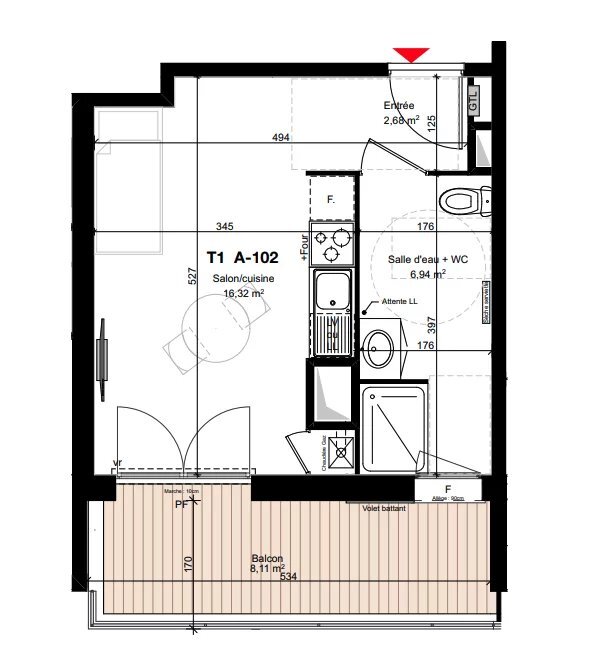
1 pièce 24.95 m2
Référence : 80158
119 000 €
4 770 € m²

Conditions de vente

119 000 €

Charges immeuble
Non renseignée
Taxe foncière
Non renseignée

Informations

Étage : 1
1 douche
Bâtiment de : 4 étages
Ascenseur
Balcon
Vue exceptionelle

Description

Idéal pour investissement : Studio avec balcon Idéalement placé, au pied des pistes et des commerces. Résidence contemporaine avec ascenseur, local ski et grand local vélos. Emplacement idéal : proche centre, thermes du Teich, gare SNCF et télécabines Parfait pied-à-terre comme investissement. Ce studio fonctionnel est composé : d'un séjour/cuisine de plus de 16m2, d'un salle de bain de plus de 6m2, d'un balcon de plus de 8m2. Pour plus d'information, merci de nous contacter directement
Mis à jour le 20/11/2025

Relevés techniques

Orientation
Sud

Diagnostic de performance énergétique :

Production eau chaude

Production chauffage


Les informations sur les risques auxquels ce bien est exposé sont disponibles sur le site Géorisques : www.georisques.gouv.fr