1 250 000 €

Dernier étage terrasse en T5 Boulogne Centre Sembat

Dernier étage terrasse en T5 Boulogne Centre Sembat

Silly-Gallieni 92100 Boulogne-Billancourt
5 pièces 90 m2
Référence : 80914
1 250 000 €
13 889 € m²

Conditions de vente

1 250 000 €

Charges immeuble
Non renseignée
Taxe foncière
Non renseignée
Honoraires TTC
24 990 € *

* Soit 1 225 010,00 € + honoraires de 2,04% TTC À la charge de l'acquéreur

Informations

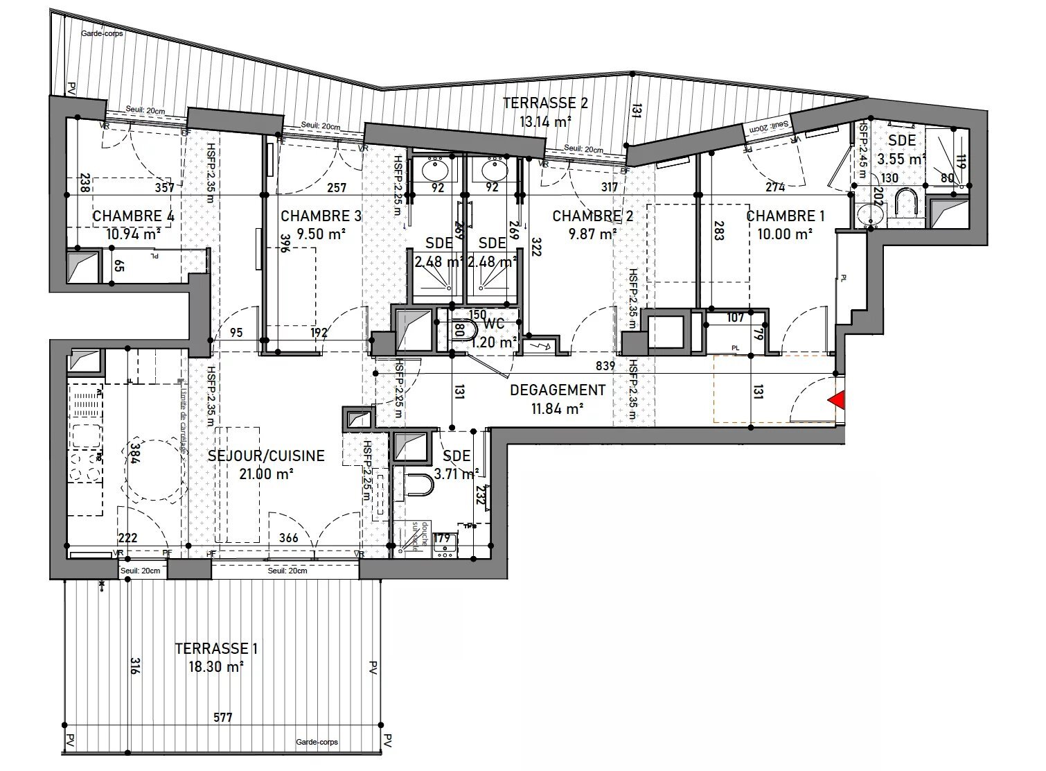
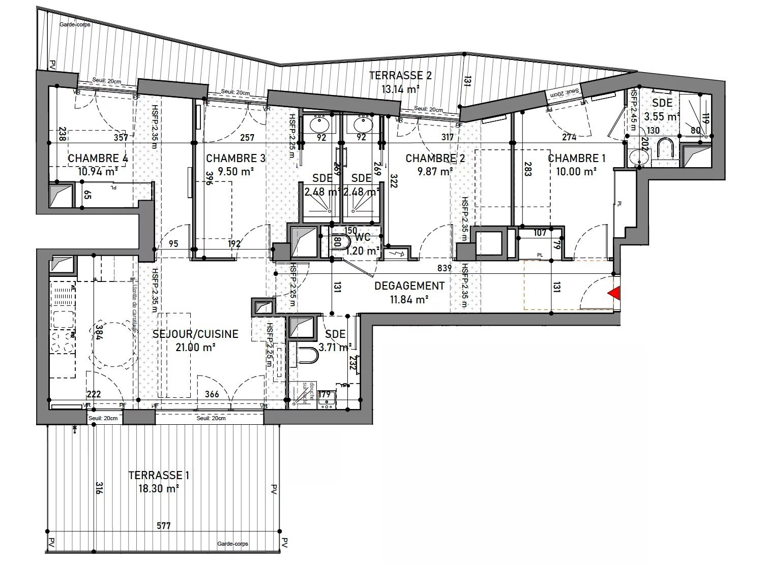
3 chambres
Étage : 6
3 douches
1 WC
Bâtiment de : 6 étages
Terrasse
Copropriété
Vue exceptionelle

Description

Dernier étage terrasse en T5 Boulogne Centre Sembat Bien rare au coeur de Boulogne-Billancourt à quelques pas de la Mairie et à 5 minutes à pied du métro. Cette résidence offre un écrin de calme et de verdure. A proximité de tous les commerces et écoles de la ville. Cet appartement EVOLUTIF de grand standing se compose : - d'un séjour/cuisine, - de 3 belles chambres ayant une salle de douche/LAVABO, avec une possibilité d'une 4ème chambre détriment du séjour - 2 terrasses une donnant dans le séjour/cuisine et l'autre donnant dans les chambres. Cet appartement propose en option un parking à 30 000 euros et ce bien bénéficie de frais de notaire à 2% au lieu de 8% Pour plus d'information, merci de nous contacter directement .
Mis à jour le 20/11/2025

Relevés techniques

Diagnostic de performance énergétique :

Production eau chaude

Production chauffage


Les informations sur les risques auxquels ce bien est exposé sont disponibles sur le site Géorisques : www.georisques.gouv.fr