283 468 €

Spécial investisseur - Appartement T3 de 72m2 à Marly le Roi

Spécial investisseur - Appartement T3 de 72m2 à Marly le Roi

78160 Marly-le-Roi
3 pièces 72 m2
Référence : 81232
283 468 €
3 937 € m²

Conditions de vente

283 468 €

Charges immeuble
Non renseignée
Taxe foncière
Non renseignée

Informations

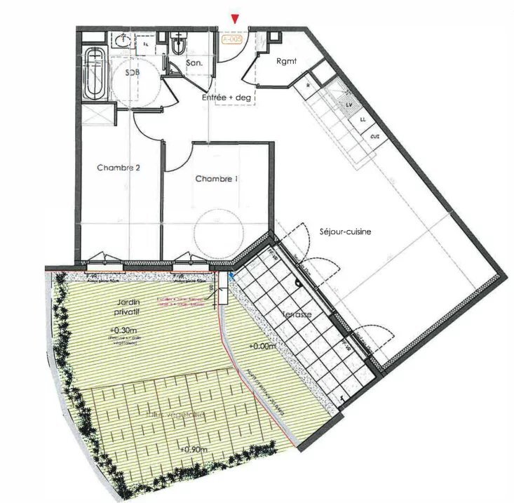
2 chambres
Étage : RDC
1 salle d'eau
1 WC
Bâtiment de : 3 étages
Terrasse
Ascenseur
Construit
Vue exceptionelle

Surface du terrain bâti inclus
39 m²

Description

Spécial investisseur - Appartement T3 de 72m2 à Marly le Roi Idéalement placée au coeur de Marly le Roi, à seulement 900 mètres de la gare et à proximité des commerces. Cet appartement en Nue Propriété se compose : - d'une belle entrée, - d'un espace de vie : séjour/cuisine de plus de 33m2, - de deux chambres, - d'une salle de bains. Le prix affiché est en TVA 10% (voir si éligibilité). Un parking est disponible en supplément à hauteur de 12 800euros. Pour plus d'information, merci de bien vouloir nous contacter directement.
Mis à jour le 20/11/2025

Relevés techniques

Orientation
Sud

Diagnostic de performance énergétique :

Production eau chaude

Production chauffage


Les informations sur les risques auxquels ce bien est exposé sont disponibles sur le site Géorisques : www.georisques.gouv.fr