177 086 €

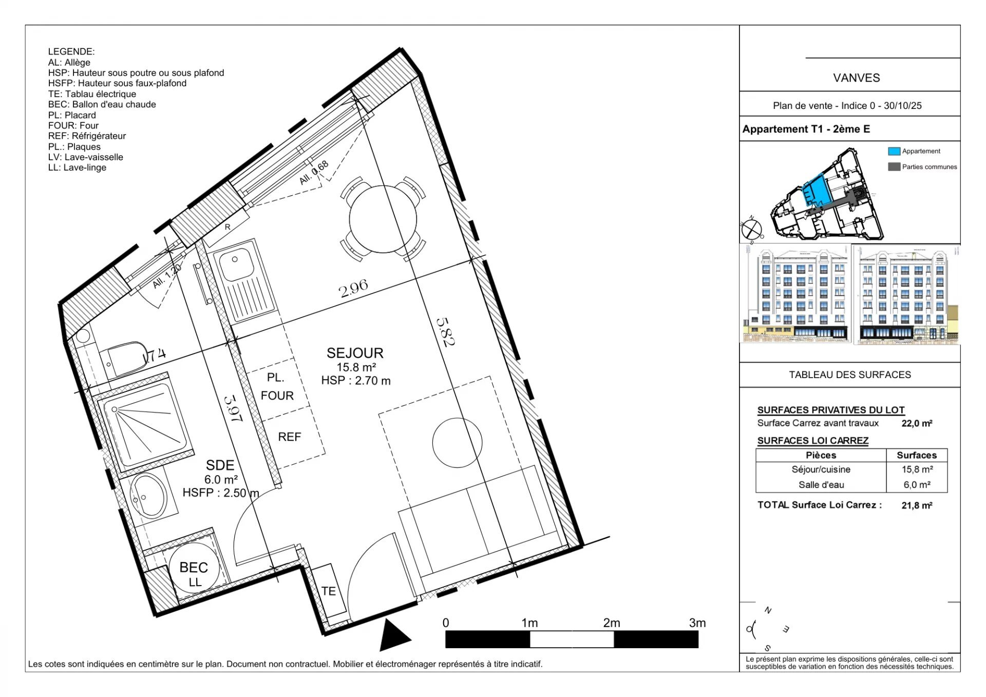
Appartement T1 de plus de 22m2 à Vanves

Appartement T1 de plus de 22m2 à Vanves

92170 Vanves
1 pièce 22.6 m2
Référence : 82250
177 086 €
7 836 € m²

Conditions de vente

177 086 €

Charges immeuble
Non renseignée
Taxe foncière
Non renseignée

Informations

Étage : 2
1 douche
Bâtiment de : 4 étages
Vue exceptionelle

Description

Appartement T1 de plus de 22m2 à Vanves Idéalement placé au coeur historique de la ville de Vanves. Proche des métros 12, 13 et prochainement la ligne 15 et également a proximité des commerces et des écoles. Ce programme est en réhabilitation, le bien se compose - d'un séjour de 16m2, - d'une salle de bain de 6m2 Pour plus d'information, merci de nous contacter directement.
Mis à jour le 07/01/2026

Relevés techniques

Diagnostic de performance énergétique :

Production eau chaude

Production chauffage


Les informations sur les risques auxquels ce bien est exposé sont disponibles sur le site Géorisques : www.georisques.gouv.fr