983,80 € cc
16,62 € / m²

Appartement nu à louer

Appartement nu à louer

Rue Nadia Murad 93140 Bondy
3 pièces 59.19 m2
Référence : 8254
983,80 € cc
16,62 € / m²

Conditions de location

983,80 € / mois cc

Charges
100,00 €
Dépôt de garantie
883,80 €
Honoraires agence
776,57 € TTC
Disponibilité
Disponible le 19/04
Durée du bail
3 ans
Colocation
Non

Informations

2 chambres
Étage : 4
1 salle d'eau
1 WC
1 parking
Ascenseur
Balcon
Copropriété
Construit Après 1990

Description

Dans un nouvel écoquartier situé en face du canal de l'Ourcq, entre parcs, commerces et écoles. A quelques minutes à pied du Tram 1.

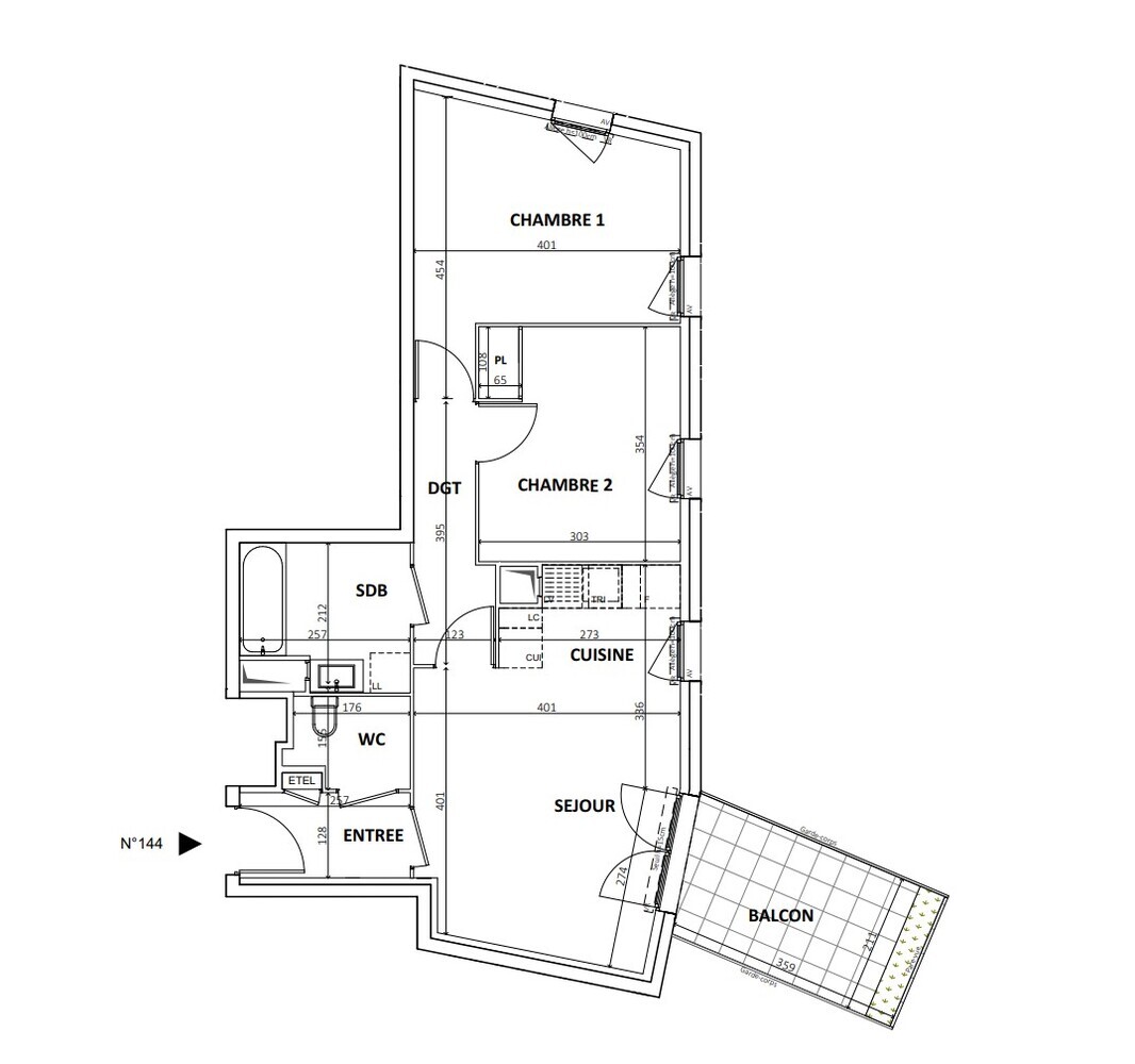
Dans une résidence à l'architecture contemporaine, un appartement de type T3 (n°144) d'une surface de 59.19m² situé au 4ème étage avec ascenseur. Il se compose d'une entrée, d'un séjour avec cuisine, de deux chambres, d'un dégagement, d'une salle de bains et d'un WC séparé.

Un balcon d'une surface de 7.99m²

Un emplacement parking en sous-sol (1038)

Disponible à partir du 19 avril 2026
Mis à jour le 06/04/2026

Transports en commun

Ligne T1
Pont de bondy
à 745 m

Inclus dans les charges

Chauffage
Eau froide
Eau chaude

Relevés techniques

DPE : 13
A
B
C
D
E
F
G
GES : 53
A
B
C
D
E
F
G
Diagnostic réalisé le: Non renseigné

Production eau chaude
Collectif

Production chauffage
Collectif


Les informations sur les risques auxquels ce bien est exposé sont disponibles sur le site Géorisques : www.georisques.gouv.fr

État et prestations

État général
Bon