Appartement nu à louer 1 008,91 € cc

Appartement Passage Amalia Rodrigues 94210 Saint-Maur-des-Fossés

2 pièces 41.64m2

Référence : 8269

Conditions de location
1 008,91 € / mois cc

Charges
100,00 €

Dépôt de garantie
908,91 €

Honoraires agence
627,60 € TTC


Disponibilité
Disponible le 18/10

Durée du bail
3 ans

Colocation
Non

Description

Blottie dans une boucle de la Marne, Saint-Maur la Varenne séduit par son cadre résidentiel préservé. Ses rues arborées, l'animation des marchés se mêle à la convivialité des boutiques variées. La station RER "la Varenne Chennevières" permet de rejoindre rapidement le centre de Paris et sera à deux stations de la ligne 15 du Grand Paris Express.
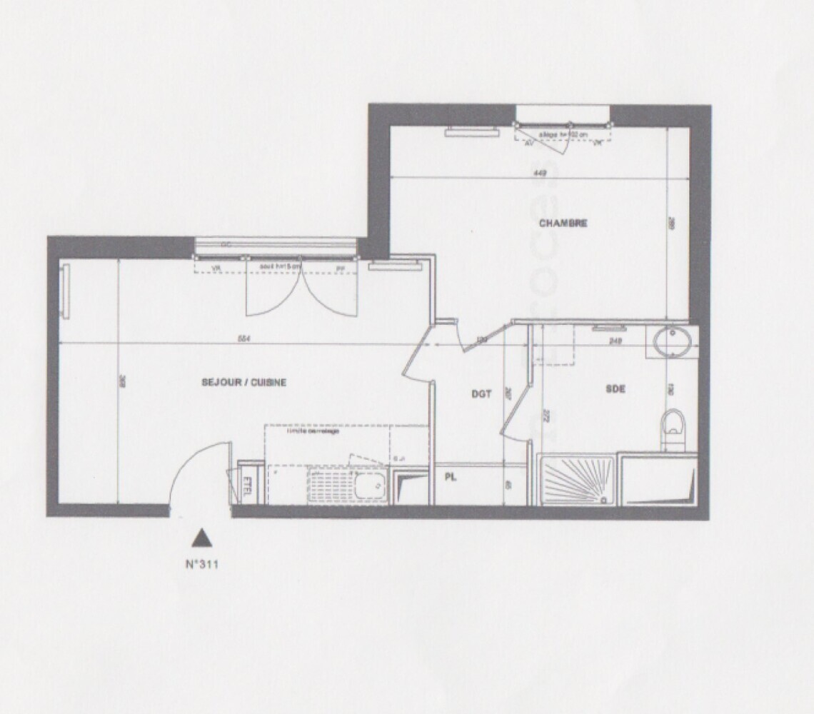
Dans une résidence neuve, au 1er étage avec ascenseur, un bel appartement de type 2 pièces (311) de 41.64m² comprenant un séjour avec une cuisine aménagée et équipée de plaques et hotte, une chambre, une salle d'eau avec wc, un dégagement avec placards.

Cadre loi Pinel

Disponible mi octobre

Merci de déposer votre dossier complet sur votre profil FLATBAY afin qu'il soit au préalable étudié. Si ce dernier répond aux critères (aux plafonds de ressources Pinel. Revenus : 3 x le montant du loyer CC) vous recevrez une invitation de visite. Tout dossier incomplet sera refusé.
Les dossiers garants sont acceptés uniquement pour les statuts étudiants

Mis à jour le 06/10/2025

Caractéristiques
  • 1 chambre
  • Étage : 1
  • 1 salle d'eau
  • 1 douche
  • 1 WC
  • Ascenseur
  • Local à vélo
  • Copropriété
  • Construit Neuf
Transports en commun

la varenne chennevieres
à 530 m

Inclus dans les charges
Chauffage
Eau chaude
Relevés techniques
DPE : 110
GES : 10

Diagnostic réalisé le: Non renseigné


Production eau chaude
Collectif

Production chauffage
Collectif


Les informations sur les risques auxquels ce bien est exposé sont disponibles sur le site Géorisques: www.georisques.gouv.fr

Biens similaires