521 500 €
7 955 € / m²

Appartement Suresnes 3 pièces

Appartement Suresnes 3 pièces

139 Rue de Verdun 92150 Suresnes
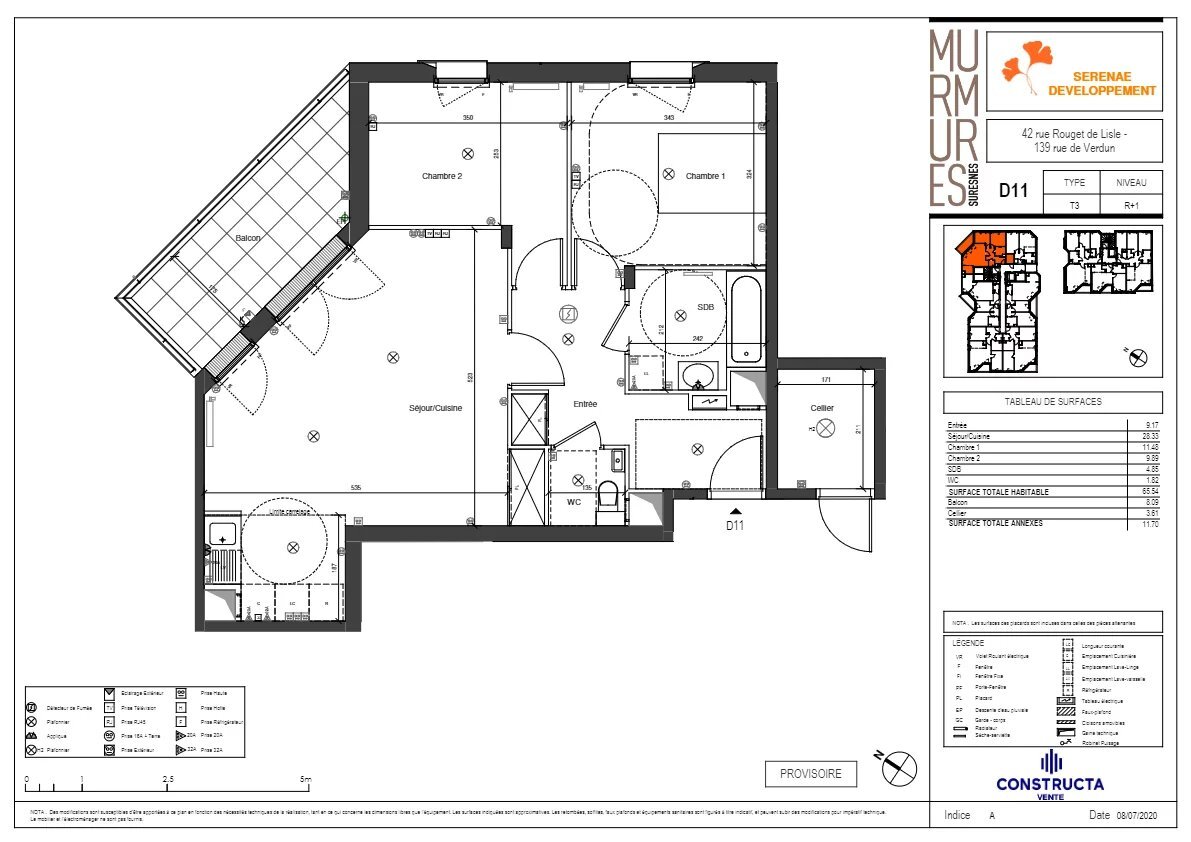
3 pièces 65.56 m2
Référence : 92CONTS1964D11
521 500 €
7 955 € / m²

Conditions de vente

521 500 €

Taxe foncière
Non renseignée

Honoraires à la charge du vendeur

Informations

2 chambres
Étage : 1
Jardin
Ascenseur
Balcon
Mono-propriété
Construit Neuf

Description

Cet appartement de 65 m2 au 1er étage se trouvant à Suresnes sera livrable à partir du 2ème semestre 2024.
C'est un appartement comprenant 2 chambres, un séjour/cuisine, un balcon de 8 m2 et une place de parking.

Ce bien se situe proche des transports, il est possible de rejoindre Paris rapidement.

Offre promotionnelle actuellement avec une remise de 3000€ par pièce.
Mis à jour le 24/03/2026

Relevés techniques

Vitrage
Double

DPE : 80
A
B
C
D
E
F
G
GES : 8
A
B
C
D
E
F
G
Diagnostic réalisé le: 12/04/2024

Production eau chaude

Production chauffage
Collectif Gaz


Les informations sur les risques auxquels ce bien est exposé sont disponibles sur le site Géorisques : www.georisques.gouv.fr

Détails des surfaces

Espace
Carrez
Au sol
Chambre
11.48 m²
0 m²

Chambre 1
9.89 m²
0 m²

Séjour / cuisine
28.33 m²
0 m²

Garage
0 m²
0 m²

Balcon
8.09 m²
0 m²

Total
57.79 m²
0.00 m²