871 100 €
10 513 € / m²

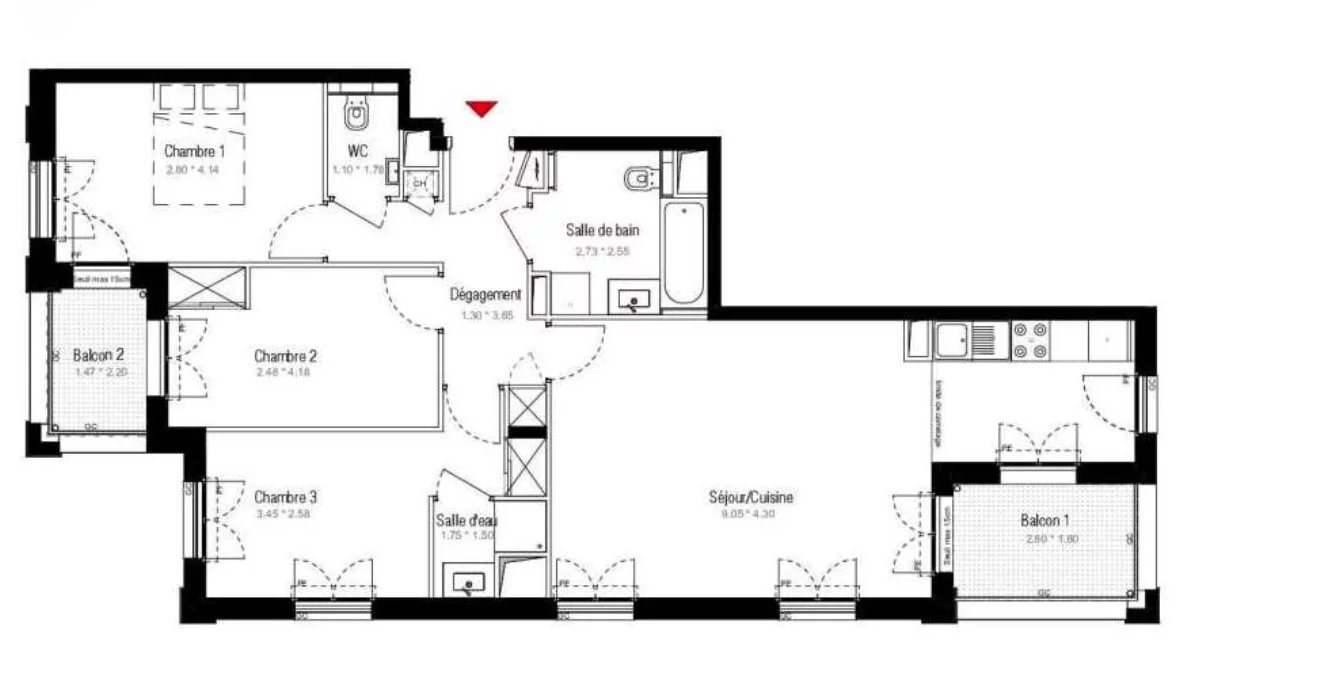
APPARTEMENT T4 - 82,86M2

APPARTEMENT T4 - 82,86M2

92800 Puteaux
4 pièces 82.86 m2
Référence : 92PUTLNCSAKUA22
871 100 €
10 513 € / m²

Conditions de vente

871 100 €

Taxe foncière
Non renseignée

Informations

3 chambres
Étage : 2
2 salles d'eau
1 WC
Bâtiment de : 5 étages
Ascenseur
Balcon
Jacuzzi
Mono-propriété

Description

BEL APPARTEMENT À PUTEAUX, QUI SE COMPOSE D'UN SÉJOUR/CUISINE DE PLUS DE 32M2, DE BELLES 3 CHAMBRES, D'UNE SALLE DE BAIN ET D'UEN SALLE DE DOUCHE.

CE BIEN POSSÈDE 2 BALCON, 1 DONNANT DANS LA CUISINE ET SÉJOUR, ET L'AUTRE DONNANT SUR 2 DES 3 CHAMBRES.

DANS UN IMMEUBLE MODERNE À PROXIMITÉ DES COMMERCES ET DES TRANSPORTS.

POUR PLUS D'INFORMATIONS, MERCI DE NOUS CONTACTER DIRECTEMENT
Mis à jour le 24/03/2026

Relevés techniques

DPE : 50
A
B
C
D
E
F
G
GES : 5
A
B
C
D
E
F
G
Diagnostic réalisé le: 29/04/2025

Production eau chaude
Chaudière

Production chauffage


Les informations sur les risques auxquels ce bien est exposé sont disponibles sur le site Géorisques : www.georisques.gouv.fr

État et prestations

État général
Excellent

Détails des surfaces

Espace
Carrez
Au sol
Séjour / cuisine
32.2 m²
0 m²

Chambre
11.59 m²
0 m²

Chambre 1
10.35 m²
0 m²

Chambre 2
11.31 m²
0 m²

Salle de bain
6.21 m²
0 m²

Salle de douche
2.07 m²
0 m²

Dégagement
7.15 m²
0 m²

Balcon
4.86 m²
0 m²

Balcon
3.2 m²
0 m²

Total
88.94 m²
0.00 m²