369 000 €
6 949 € / m²

Appartement T2 duplex de 53,10 m2 avec Terrasse

Appartement T2 duplex de 53,10 m2 avec Terrasse

73590 Notre-Dame-de-Bellecombe
2 pièces 53.1 m2
Référence : 73NEWBAJA203
369 000 €
6 949 € / m²

Conditions de vente

369 000 €

Taxe foncière
Non renseignée

Informations

1 chambre
Étage : 2
2 salles d'eau
2 douches
1 WC
Bâtiment de : 2 étages
Terrasse
1 parking
1 cave
Mono-propriété
Vue exceptionelle

Description

Dans un écrin majestueux, cerné par les sommets, les forêts de sapins et les lacs alpins au sein de la station village de Notre-Dame-De-Bellecombe.

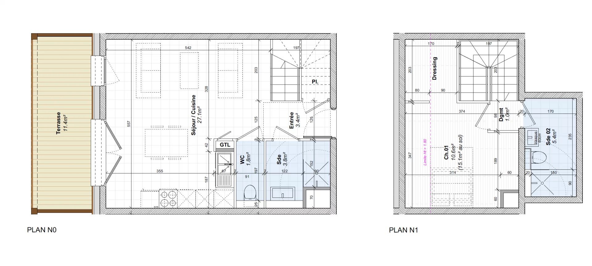
Ce beau appartement se compose :

- d'une entrée,
- d'un séjour/cuisine de 27m2
- d'une chambre,
- de 2 salles de douche,
- et d'une grande terrasse de plus de 11m2

Le bien est vendu avec un parking, une cave et casier
Pour plus d'information, merci de nous contacter
Mis à jour le 27/03/2026

Relevés techniques

Traversant
Non
Vitrage
Double

DPE : 71
A
B
C
D
E
F
G
GES : 7
A
B
C
D
E
F
G
Diagnostic réalisé le: 07/07/2025

Production eau chaude
Individuel Électrique

Production chauffage
Individuel Électrique


Les informations sur les risques auxquels ce bien est exposé sont disponibles sur le site Géorisques : www.georisques.gouv.fr

État et prestations

État général
Excellent

Cuisine
Prestations
État
Salles de bain
Prestations
État
Sol(s)
Prestations
État
Fenêtres
Prestations
État

Détails des surfaces

Espace
Carrez
Au sol
Entrée
3.4 m²
0 m²

Séjour / cuisine
27.1 m²
0 m²

Salle de douche
3.8 m²
0 m²

Salle de douche
5.4 m²
0 m²

Dégagement
1 m²
0 m²

Chambre 1
10.6 m²
0 m²

WC
1.8 m²
0 m²

Terrasse
0 m²
11.4 m²

Total
53.10 m²
11.40 m²